Bénéficiez des services de nos partenaires locaux soigneusement sélectionnés
pour vous accompagner dans votre parcours d'achat immobilier

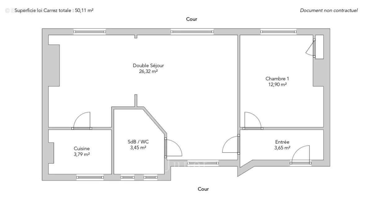
Paris 15e - la motte-picquet / commerce - appartement à vendre - 2 pièces - 50,11m² carrez - 1 chambre - meublé.

— Paris-15e 75015 —
595 000 €
50 m²
2 pièces

Nos partenaires locaux
Idéalement situé dans le quartier de La Motte-Picquet et à deux pas de la rue du Commerce, un appartement deux pièces de 50,11m² loi Carrez au troisième étage par escalier d'un immeuble construit en 1907 et très bien tenu.

Cet appartement, en très bon état général, offre le charme de l'ancien avec une belle hauteur sous plafond, des moulures, des parquets et une cheminée décorative. Il est clair, ensoleillé, au grand calme sur cour et proposé meublé.

Le plan optimisé comporte une entrée, un vaste double séjour de 26m² traversant sud-nord, une cuisine attenante à la salle à manger, une chambre et une salle de douche avec des toilettes.

Une grande cave vient compléter cette offre.

EXCLUSIVITÉ.
Voir plus

Référence: 3348GRECOL
Barème des honoraires
DPE
A
B
C
D
E
F
G
GES
A
B
C
D
E
F
G

Prêt immobilier

Vous souhaitez connaître votre capacité d’emprunt et trouver le meilleur crédit immobilier ?
Réaliser une simulation gratuite

Appartement à PARIS-15E
Appartement à PARIS-15E
Appartement à PARIS-15E
Appartement à PARIS-15E
Appartement à PARIS-15E
Appartement à PARIS-15E
Appartement à PARIS-15E
Appartement à PARIS-15E
Appartement à PARIS-15E
Appartement à PARIS-15E
Appartement à PARIS-15E
Appartement à PARIS-15E
Appartement à PARIS-15E
Appartement à PARIS-15E
Appartement à PARIS-15E
Appartement à PARIS-15E
Appartement à PARIS-15E
Ce site est protégé par reCAPTCHA la Politique de confidentialité et les Conditions d’utilisation de Google s’appliquent.
Obtenir un prêt immobilier au meilleur taux ?

En poursuivant votre navigation sans modifier vos paramètres, vous acceptez l'utilisation de cookies susceptibles de réaliser des statistiques de visite. Cliquez ici pour plus d'informations