Clichy - 3 pieces dernier etage - 315 000 fai

— Clichy 92110 —
315 000 €
48 m²
3 pièces
ascenseur

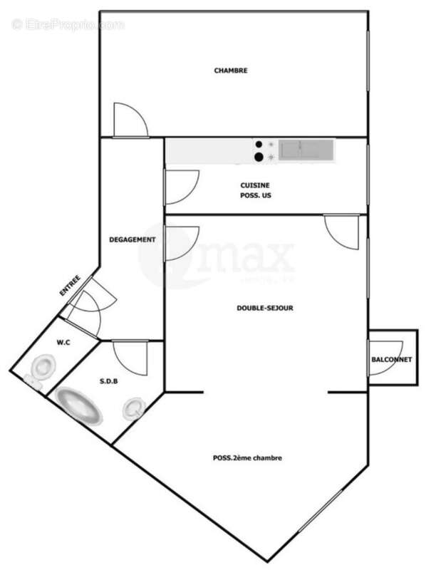
Centre-ville de Clichy, à quelques pas du métro Mairie de Clichy (ligne 13) et des commerces, au sein d'un immeuble semi-récent bien entretenu. Imax vous propose ce superbe 3 pièces lumineux au dernier étage. Il se compose : d'une entrée, d'un double séjour (poss. 2ème chambre), d'une cuisine indépendante (poss. US), d'une chambre, d'une salle de bain et d'un WC séparé. Une cave complète ce bien. Mandat de vente exclusif : V585 (3.96 % honoraires TTC à la charge de l'acquéreur.) Copropriété de 26 lots (Pas de procédure en cours). Charges annuelles : 2976 euros.
Voir plus

Référence: V585
Bien en copropriété. Nombre de lots : 26. Charges de copropriété : 2976 €.
Honoraires d'agence de 3.96% à la charge de l'acquéreur
Barème des honoraires
DPE
A
B
C
D
E
F
G
GES
A
B
C
D
E
F
G

Prêt immobilier

Vous souhaitez connaître votre capacité d’emprunt et trouver le meilleur crédit immobilier ?
Réaliser une simulation gratuite

Appartement à CLICHY
Appartement à CLICHY
Appartement à CLICHY
Appartement à CLICHY
Appartement à CLICHY
Appartement à CLICHY
Ce site est protégé par reCAPTCHA la Politique de confidentialité et les Conditions d’utilisation de Google s’appliquent.
Obtenir un prêt immobilier au meilleur taux ?

En poursuivant votre navigation sans modifier vos paramètres, vous acceptez l'utilisation de cookies susceptibles de réaliser des statistiques de visite. Cliquez ici pour plus d'informations