Bénéficiez des services de nos partenaires locaux soigneusement sélectionnés
pour vous accompagner dans votre parcours d'achat immobilier

Terrain 465m² à saint-savournin

— Saint-Savournin 13119 —
275 000 €
465 m²

Nos partenaires locaux
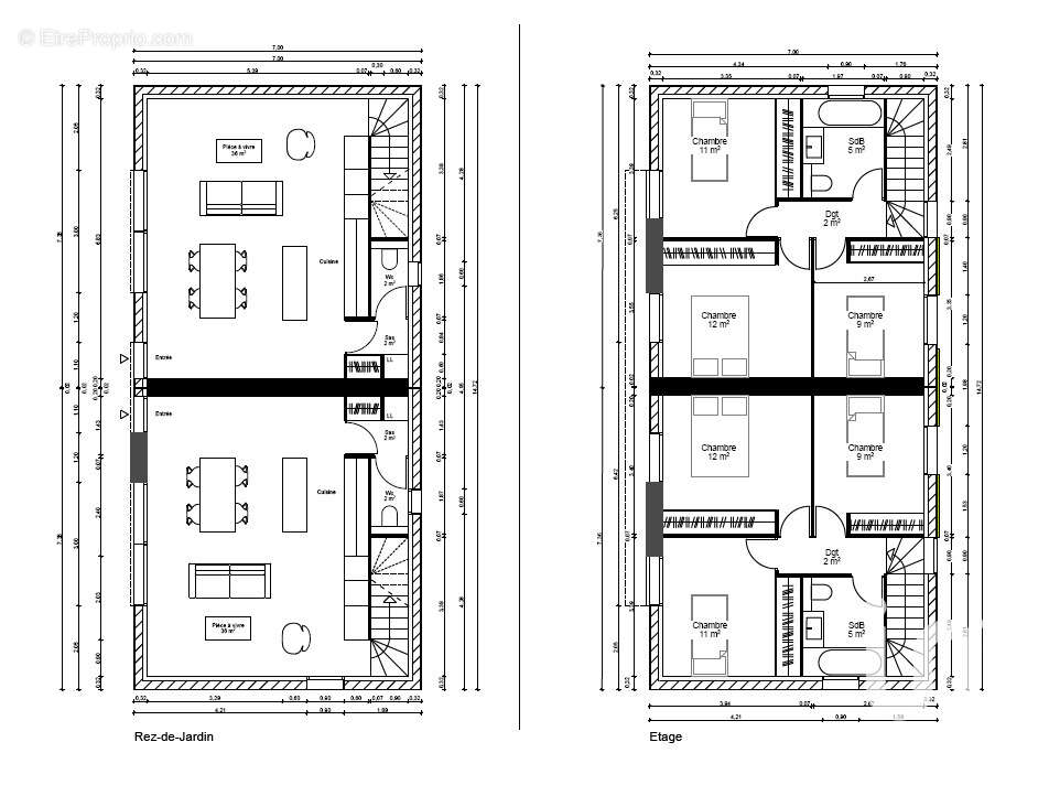
Iad France - Sébastien De Ville vous propose : Terrain à bâtir de 465 m² avec un permis déposé pour une maison individuelle de 2 logements mitoyens. Le terrain est situé dans un secteur recherché de Saint Savournin, il est viabilisé.
Le permis comporte 2 logements T4 d'environ 85 m² selon les plans en photos, un jardin et 4 places de stationnement.
Contactez moi pour plus d'informations.

Honoraires d'agence à la charge du vendeur.
Bien non soumis au DPE. Les informations sur les risques auxquels ce bien est exposé, y compris l'obligation légale de débroussaillement, sont disponibles sur le site Géorisques : http://www.georisques.gouv.fr.
La présente annonce immobilière a été rédigée sous la responsabilité éditoriale de M Sébastien De Ville mandataire indépendant en immobilier (sans détention de fonds), agent commercial de la SAS I@D France immatriculé au RSAC de Aix en Provence sous le numéro 879815462, titulaire de la carte de démarchage immobilier pour le compte de la société I@D France SAS.
Informations LOI ALUR :
Honoraires charge vendeur. (gedeon_6727_32229227)
Voir plus

Référence: 1668046
Honoraires à la charge du vendeur.

Prêt immobilier

Vous souhaitez connaître votre capacité d’emprunt et trouver le meilleur crédit immobilier ?
Réaliser une simulation gratuite

Photo 1 - Terrain à SAINT-SAVOURNIN
Photo 1
Photo 2 - Terrain à SAINT-SAVOURNIN
Photo 2
Photo 3 - Terrain à SAINT-SAVOURNIN
Photo 3
Photo 4 - Terrain à SAINT-SAVOURNIN
Photo 4
Photo 5 - Terrain à SAINT-SAVOURNIN
Photo 5
Ce site est protégé par reCAPTCHA la Politique de confidentialité et les Conditions d’utilisation de Google s’appliquent.
Obtenir un prêt immobilier au meilleur taux ?

En poursuivant votre navigation sans modifier vos paramètres, vous acceptez l'utilisation de cookies susceptibles de réaliser des statistiques de visite. Cliquez ici pour plus d'informations