A voir absolument

— Saint-Aubin-Les-Forges 58130 —
143 000 €
89 m²
5 pièces
parking

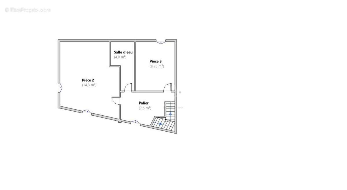
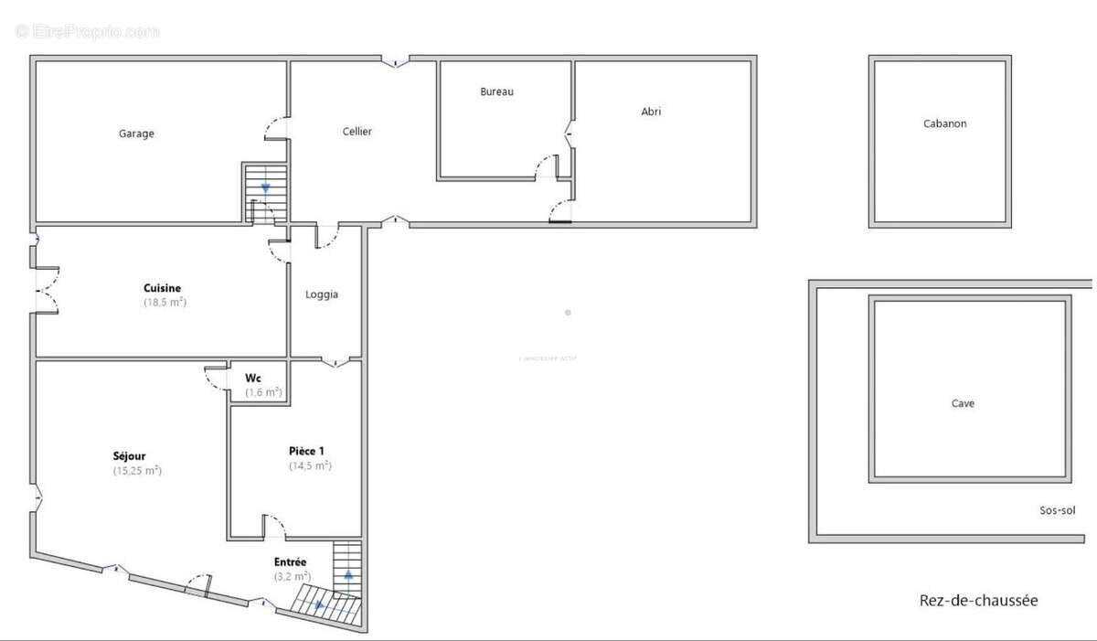
Le séjour de constitue un espace convivial autour du poêle à bois. La cuisine indépendante, neuve, aménagée et équipée vous ravira, tandis qu'une cuisine d'été attenante vous permettra de profiter pleinement des beaux jours. Côté nuit, vous trouverez jusqu'à trois chambres lumineuses dont une chambre parentale avec salle d'eau, une salle d'eau et deux WC, assurant un confort optimal pour toute la famille. Les combles aménageables offrent un beau potentiel d'agrandissement ou de création d'un espace supplémentaire selon vos envies. La toiture a été entièrement refaite en 2023. À l'extérieur, le jardin privatif constitue un véritable écrin de verdure, idéal pour les repas en plein air et les moments de détente. Vous y trouverez une loggia abritée ainsi qu'une cabane de jardin. Un garage double permet d'accueillir deux véhicules en toute sécurité, tandis qu'une cave de 21 m² et un grenier complètent les espaces de rangement. La maison dispose d'un chauffage individuel et de fenêtres à double vitrage, garantissant une isolation thermique et phonique de qualité. La toiture neuve vient parfaire l'ensemble, assurant sérénité et durabilité. Ne manquez pas cette maison alliant charme, modernité et prestations récentes. Contactez moi dès aujourd'hui pour organiser une visite et laissez-vous séduire par cette belle opportunité immobilière. Contactez votre Agent AXO - L'immobilier Actif au [Coordonnées masquées], Mélanie MASSÉ . Plus d'informations sur www.axo.immo (réf. 85002122301). Honoraires à la charge du vendeur. Les informations sur les risques auxquels ce bien est exposé sont disponibles sur le site Géorisques : https://www.georisques.gouv.fr/
Voir plus

Référence: 33941
Honoraires à la charge du vendeur.
Barème des honoraires
DPE
A
B
C
D
E
F
G
GES
A
B
C
D
E
F
G

Prêt immobilier

Vous souhaitez connaître votre capacité d’emprunt et trouver le meilleur crédit immobilier ?
Réaliser une simulation gratuite

Maison à SAINT-AUBIN-LES-FORGES
Maison à SAINT-AUBIN-LES-FORGES
Maison à SAINT-AUBIN-LES-FORGES
Maison à SAINT-AUBIN-LES-FORGES
Maison à SAINT-AUBIN-LES-FORGES
Maison à SAINT-AUBIN-LES-FORGES
Maison à SAINT-AUBIN-LES-FORGES
Maison à SAINT-AUBIN-LES-FORGES
Maison à SAINT-AUBIN-LES-FORGES
Maison à SAINT-AUBIN-LES-FORGES
Maison à SAINT-AUBIN-LES-FORGES
Maison à SAINT-AUBIN-LES-FORGES
Maison à SAINT-AUBIN-LES-FORGES
Ce site est protégé par reCAPTCHA la Politique de confidentialité et les Conditions d’utilisation de Google s’appliquent.
Obtenir un prêt immobilier au meilleur taux ?

En poursuivant votre navigation sans modifier vos paramètres, vous acceptez l'utilisation de cookies susceptibles de réaliser des statistiques de visite. Cliquez ici pour plus d'informations