Bénéficiez des services de nos partenaires locaux soigneusement sélectionnés
pour vous accompagner dans votre parcours d'achat immobilier

Terrain constructible - la toussuire

— Fontcouverte-La-Toussuire 73300 —
70 000 €
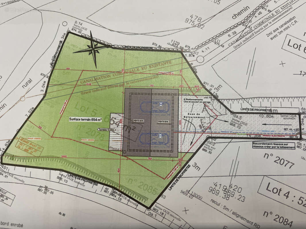
639 m²
jardin

Nos partenaires locaux
IMAGINEZ ICI votre futur projet de construction... Situé à 5 minutes du centre de ST JEAN DE MAURIENNE, lotissement au calme et ensoleillé proche station de la TOUSSUIRE .
PARCELLE DE TERRAIN CONSTRUCTIBLE de 639 m2 avec permis de construire validé. Projet et plans consultables à l'agence.Possibilité de modifier selon ses besoins et de déposer un autre permis de construire.
Pour plus de renseignements contacter notre agence de SAINT JEAN DE MAURIENNE au TEL [Coordonnées masquées]
Ou sur le portable [Coordonnées masquées]
Voir plus

Référence: 25/6452
Honoraires à la charge du vendeur.
Barème des honoraires

Prêt immobilier

Vous souhaitez connaître votre capacité d’emprunt et trouver le meilleur crédit immobilier ?
Réaliser une simulation gratuite

Terrain à FONTCOUVERTE-LA-TOUSSUIRE
Terrain à FONTCOUVERTE-LA-TOUSSUIRE
Terrain à FONTCOUVERTE-LA-TOUSSUIRE
Terrain à FONTCOUVERTE-LA-TOUSSUIRE
Terrain à FONTCOUVERTE-LA-TOUSSUIRE
Terrain à FONTCOUVERTE-LA-TOUSSUIRE
Terrain à FONTCOUVERTE-LA-TOUSSUIRE
Terrain à FONTCOUVERTE-LA-TOUSSUIRE
Terrain à FONTCOUVERTE-LA-TOUSSUIRE
Ce site est protégé par reCAPTCHA la Politique de confidentialité et les Conditions d’utilisation de Google s’appliquent.
Obtenir un prêt immobilier au meilleur taux ?

En poursuivant votre navigation sans modifier vos paramètres, vous acceptez l'utilisation de cookies susceptibles de réaliser des statistiques de visite. Cliquez ici pour plus d'informations