Bénéficiez des services de nos partenaires locaux soigneusement sélectionnés
pour vous accompagner dans votre parcours d'achat immobilier

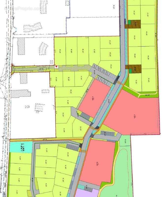
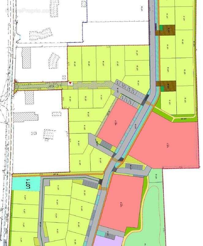
Notre dame d'oé - terrain à bâtir prêt à construire

— Notre-Dame-D'oe 37390 —
100 700 €
403 m²

Nos partenaires locaux
EXCLUSIVITE Val Touraine Habitat !

Aux portes de TOURS, entre ville et campagne, venez découvrir le Lotissement " La Borde 2" à NOTRE DAME D'OE.

Ces terrains à bâtir, vendus bornés et viabilisés (branchements : eau potable, électricité, télécoms et réseaux d'assainissement eaux usées et eaux pluviales), sont prêts à construire avec le libre choix de votre constructeur.

Les atouts de ce lotissement :

•Emplacement de qualité, à proximité des commerces et commodités

•Accès rapide à TOURS en voiture, bus ou vélo

•Secteur en plein développement démographique et économique

•Fort potentiel de valorisation, parfait pour un investissement locatif ou une résidence principale, grâce à l'attractivité résidentielle et une demande locative soutenue pour un investissement rentable

Les terrains sont éligibles au Prêt à Taux Zéro (PTZ) : profitez-en pour devenir propriétaire dès maintenant ! (*)

Je suis à votre écoute pour étudier votre projet de construction, répondre à toutes vos questions et vous offrir un accompagnement personnalisé et confidentiel, pour donner vie à votre future maison en toute sérénité.

> Contactez-moi dès aujourd'hui pour recevoir le dossier complet du lotissement, les plans des lots et la grille des prix.

Je serai ravi de vous rencontrer et de vous accompagner dans votre projet :
• Miguel De FARIA : O6.59.67.86.89.

(*) voir conditions auprès de votre conseiller
Voir plus

Référence: 1961-18_ce

Prêt immobilier

Vous souhaitez connaître votre capacité d’emprunt et trouver le meilleur crédit immobilier ?
Réaliser une simulation gratuite

Terrain à NOTRE-DAME-D'OE
Terrain à NOTRE-DAME-D'OE
Terrain à NOTRE-DAME-D'OE
Terrain à NOTRE-DAME-D'OE
Terrain à NOTRE-DAME-D'OE
Terrain à NOTRE-DAME-D'OE
Terrain à NOTRE-DAME-D'OE
Terrain à NOTRE-DAME-D'OE
Terrain à NOTRE-DAME-D'OE
Ce site est protégé par reCAPTCHA la Politique de confidentialité et les Conditions d’utilisation de Google s’appliquent.
Obtenir un prêt immobilier au meilleur taux ?

En poursuivant votre navigation sans modifier vos paramètres, vous acceptez l'utilisation de cookies susceptibles de réaliser des statistiques de visite. Cliquez ici pour plus d'informations