Bénéficiez des services de nos partenaires locaux soigneusement sélectionnés
pour vous accompagner dans votre parcours d'achat immobilier

Terrain constructible - la toussuire

— Fontcouverte-La-Toussuire 73300 —
70 000 €
639 m²
jardin

Nos partenaires locaux
SOUS COMPROMIS DE VENTE .... TROP TARD
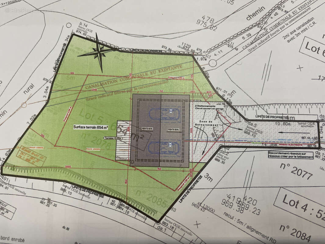
IMAGINEZ ICI votre futur projet de construction... Situé à 5 minutes du centre de ST JEAN DE MAURIENNE, lotissement au calme et ensoleillé proche station de la TOUSSUIRE .
PARCELLE DE TERRAIN CONSTRUCTIBLE de 639 m2 avec permis de construire validé. Projet et plans consultables à l'agence.Possibilité de modifier selon ses besoins et de déposer un autre permis de construire.
Pour plus de renseignements contacter notre agence de SAINT JEAN DE MAURIENNE au TEL [Coordonnées masquées]
Voir plus

Référence: 25/6452
Honoraires à la charge du vendeur.
Barème des honoraires
Terrain à FONTCOUVERTE-LA-TOUSSUIRE
Terrain à FONTCOUVERTE-LA-TOUSSUIRE
Terrain à FONTCOUVERTE-LA-TOUSSUIRE
Terrain à FONTCOUVERTE-LA-TOUSSUIRE
Terrain à FONTCOUVERTE-LA-TOUSSUIRE
Terrain à FONTCOUVERTE-LA-TOUSSUIRE
Terrain à FONTCOUVERTE-LA-TOUSSUIRE
Terrain à FONTCOUVERTE-LA-TOUSSUIRE
Terrain à FONTCOUVERTE-LA-TOUSSUIRE
Géorisques

Les informations sur les risques auxquels ce bien est exposé sont disponibles sur le site Géorisques : www.georisques.gouv.fr

Ce site est protégé par hCaptcha Politique de confidentialité et Conditions d’utilisation s’appliquent.