Bénéficiez des services de nos partenaires locaux soigneusement sélectionnés
pour vous accompagner dans votre parcours d'achat immobilier

Charmant 3 pièces à courbevoie

— Courbevoie 92400 —
589 000 €
85 m²
3 pièces

Nos partenaires locaux
COURBEVOIE BECON LES BRUYERES – Appartement 3 / 4 PIÈCES + CAVE au 5ᵉ étage – Charme de l'ancien & très lumineux

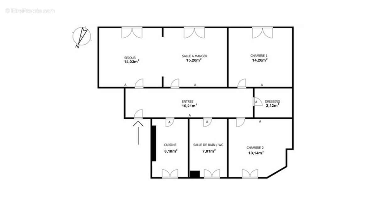
Idéalement situé dans un quartier résidentiel recherché de Courbevoie Bécon, à proximité immédiate des commerces et des transports (à seulement deux minutes à pied de la gare de Bécon-les-Bruyères (ligne L) qui dessert Paris Saint-Lazare en 7 minutes et La Défense en 5 minutes), ce bel appartement avec le charme de l'ancien : belle hauteur sous plafond, parquet massif en chêne et cheminée - traversant et lumineux de 3/4 pièces de 85,15m² avec vue dégagée, exposé Sud Ouest/ Nord Est offre un cadre de vie à la fois chaleureux et élégant, dans un environnement apprécié pour son calme et sa qualité de vie.

Situé au 5ᵉ étage sur 6 de l'immeuble, il se compose d'une entrée de 10,21m², une cuisine séparée et équipée de 8,18m² avec des matériaux de qualité, un salon/salle à manger de 29m², une salle de bains lumineuse avec WC de 7,01m², deux chambres de 14,26m² et 13,14m², un dressing de 3,12m² et deux balcons orientés Sud Ouest. Possibilité de 3ème chambre. Une cave complète ce bien.

Vous apprécierez son emplacement privilégié, proche des écoles et des commerces du centre-ville, tout en profitant d'un environnement résidentiel et paisible.

Un bien coup de cœur, idéal pour un couple, une petite famille ou un amateur d'appartements anciens au charme authentique.

Double vitrage
DPE : E

Chauffage : individuel au gaz par chaudière
Eau chaude : individuelle au gaz par chaudière
Taxe foncière : 589 €
Charges de copropriété : 166 €/mois
Nombre de lots : 15 lots
Pas de procédure en cours.

Honoraires d'agence à la charge acquéreur : 28 000 € (5%) inclus dans le prix de vente de 589 000 euros. Montant estimé des dépenses annuelles d'énergie pour un usage standard, établi à partir des prix de l'énergie de l'année 2021 : 2110 € ~ 2 900 € - RCS 78989753500025 - Caisse de garantie SOCAF Gestion 220000 EUR - Caisse de garantie SOCAF Transaction 120000 EUR. - Les informations sur les risques auxquels ce bien est exposé sont disponibles sur le site Géorisques : www.georisques.gouv.fr
Voir plus

Référence: 7258167
Bien en copropriété. Charges de copropriété : 166 €.
DPE
A
B
C
D
E
F
G
GES
A
B
C
D
E
F
G

Prêt immobilier

Vous souhaitez connaître votre capacité d’emprunt et trouver le meilleur crédit immobilier ?
Réaliser une simulation gratuite

Appartement à COURBEVOIE
Appartement à COURBEVOIE
Appartement à COURBEVOIE
Appartement à COURBEVOIE
Appartement à COURBEVOIE
Appartement à COURBEVOIE
Appartement à COURBEVOIE
Appartement à COURBEVOIE
Appartement à COURBEVOIE
Appartement à COURBEVOIE
Appartement à COURBEVOIE
Appartement à COURBEVOIE
Appartement à COURBEVOIE
Appartement à COURBEVOIE
Ce site est protégé par reCAPTCHA la Politique de confidentialité et les Conditions d’utilisation de Google s’appliquent.
Obtenir un prêt immobilier au meilleur taux ?

En poursuivant votre navigation sans modifier vos paramètres, vous acceptez l'utilisation de cookies susceptibles de réaliser des statistiques de visite. Cliquez ici pour plus d'informations