T3 traversant et lumineux au dernier étage – quartier recherché des administrations, nîmes

— Nimes 30900 —
99 000 €
57 m²
3 pièces
balcon/terrasse

Nîmes – Un appartement traversant au calme, à deux pas de tout
Quartier des Administrations
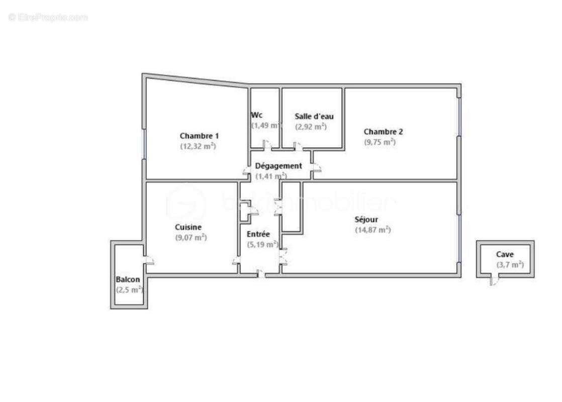
Situé au 4e et dernier étage d'un petit immeuble sans ascenseur, cet appartement T3 de 57,02 m² séduit par sa luminosité et sa localisation stratégique, au cœur d'un quartier recherché de Nîmes. Ici, tout se fait à pied ou en quelques minutes de voiture, dans un cadre agréable.

Dès l'entrée, de pratiques placards intégrés permettent de ranger vestes et chaussures sans encombrer l'espace. Le séjour orienté Est, d'environ 15 m², est baigné de lumière dès le matin et offre une ambiance paisible. La cuisine séparée semi-équipée se prolonge par une loggia ouverte de 2,45 m², parfaite pour stocker ou aérer.
Le coin nuit propose deux chambres bien proportionnées de 9,75 m² et 12,32 m², une salle d'eau fonctionnelle, ainsi que des WC séparés. Une cave privative de 3,70 m², située en rez-de-chaussée, complète le bien et permet un rangement optimal (vélos, cartons, équipements saisonniers...).

Les atouts du bien :
- Appartement traversant et lumineux
- Dernier étage sans vis-à-vis direct
- Loggia ouverte attenante à la cuisine
- Cave privative incluse
- Quartier très bien desservi
- À proximité immédiate des commerces, transports, écoles et espaces verts
- Faibles charges : env. 50 €/mois
- Chauffage individuel électrique

Surface Carrez : 57,02 m²
DPE : F GES : C

Une situation idéale pour vivre ou investir. Le quartier des Administrations est connu pour sa tranquillité, sa sécurité, et la proximité directe avec toutes les commodités :
- Commerces du quotidien : Lidl, Picard, boulangeries, pharmacies, supérettes
- Centre médical Kennedy et de nombreux professionnels de santé
- Écoles et lycées réputés, dont le lycée Dhuoda
- Transports en commun : arrêts de bus à proximité immédiate pour rejoindre le centre-ville ou la gare
- Parc Georges Besse à moins de 10 minutes à pied pour les balades ou le sport en plein air

Et pour les déplacements :
- Accès rapide à l'autoroute A9 (10 min)
- Aéroport de Nîmes à 15 minutes
- Montpellier à 40 minutes
- Les plages du littoral à environ 45 minutes (Grau-du-Roi, Port Camargue, La Grande-Motte)

Un investissement intéressant
Loyer estimé à 684 €/mois, soit environ 8 208 € de revenus annuels.
Rentabilité brute estimée à 8,3 %, grâce à une localisation à forte demande locative.
Ce bien représente une excellente opportunité pour un premier achat, un investissement locatif, ou un pied-à-terre dans un quartier équilibré et recherché.

Contact : Mélisa Martin-Sisteron au O7 7O 18 et 96 35
[Coordonnées masquées]

Inter-agence bienvenue si vous avez un acquéreur sérieux.

Cette annonce référence 280719 vous est présentée par votre agent commercial BSK Immobilier MÉLISA MARTIN-SISTERON (EI) immatriculé au RSAC de MONTPELLIER (34000) sous le numéro 92[Coordonnées masquées]16.

Prix du bien : 99 000,00 €
Les honoraires d'agence sont à la charge du vendeur.

A propos de la copropriété :
Pas de procédure en cours.
Nombre de lots : 64
Charges prévisionnelles annuelles : 600,00 €

A propos des performances énergétiques :
Date de réalisation du diagnostic énergétique : 10/03/2025
Score DPE : 371 kWhEP/m²/an
Score GES : 18 kgepCO2/m²/an
Montant estimé des dépenses annuelles d'énergie pour un usage standard : entre 1690.00 € et 2330.00 € par an. Prix moyens des énergies indexés sur l'année 2023 (abonnements compris).

Les informations sur les risques auxquels ce bien est exposé sont disponibles sur le site Géorisques : www.georisques.gouv.fr
Voir plus

Référence: 280719
Bien en copropriété. Nombre de lots : 64. Charges de copropriété : 50 €.
Honoraires à la charge du vendeur.
DPE
A
B
C
D
E
F
G
GES
A
B
C
D
E
F
G

Prêt immobilier

Vous souhaitez connaître votre capacité d’emprunt et trouver le meilleur crédit immobilier ?
Réaliser une simulation gratuite

Appartement à NIMES
Appartement à NIMES
Appartement à NIMES
Appartement à NIMES
Appartement à NIMES
Appartement à NIMES
Appartement à NIMES
Appartement à NIMES
Appartement à NIMES
Appartement à NIMES
Appartement à NIMES
Appartement à NIMES
Appartement à NIMES
Appartement à NIMES
Appartement à NIMES
Appartement à NIMES
Ce site est protégé par reCAPTCHA la Politique de confidentialité et les Conditions d’utilisation de Google s’appliquent.
Obtenir un prêt immobilier au meilleur taux ?

En poursuivant votre navigation sans modifier vos paramètres, vous acceptez l'utilisation de cookies susceptibles de réaliser des statistiques de visite. Cliquez ici pour plus d'informations