Appartement

— Saint-Apollinaire 21850 —
210 000 €
63 m²
3 pièces
parkingbalcon/terrasse

21850 - SAINT-APOLLINAIRE - DIJON - 3 PIECES - 2 CHAMBRES - 63.0 M² - APPARTEMENT AVEC BALCON ET VUE SUR VERDURE - RESIDENCE CALME ET SECURISEE

PHILIPPE GATIER et Efficity, l'agence qui estime votre bien en ligne, vous propose en exclusivité, ce charmant appartement situé entre Saint-Apollinaire et Dijon, dans une copropriété parfaitement entretenue.

D'une surface de 63.0 m², cet appartement fonctionnel en excellent état dispose d'un balcon offrant une vue agréable sur la verdure environnante. Idéal pour profiter de moments de détente en extérieur.

Situé dans une résidence calme et sécurisée, vous pourrez apprécier la tranquillité des lieux tout en bénéficiant de la proximité immédiate des commerces et des accès rapides aux transports en commun (bus, tramway).

L'environnement offre un cadre de vie très agréable et pratique à la fois. L'appartement se trouve au 1er étage d'un immeuble de 2 niveaux, avec la possibilité de stationner facilement grâce à une place de parking extérieure dédiée à l'appartement.

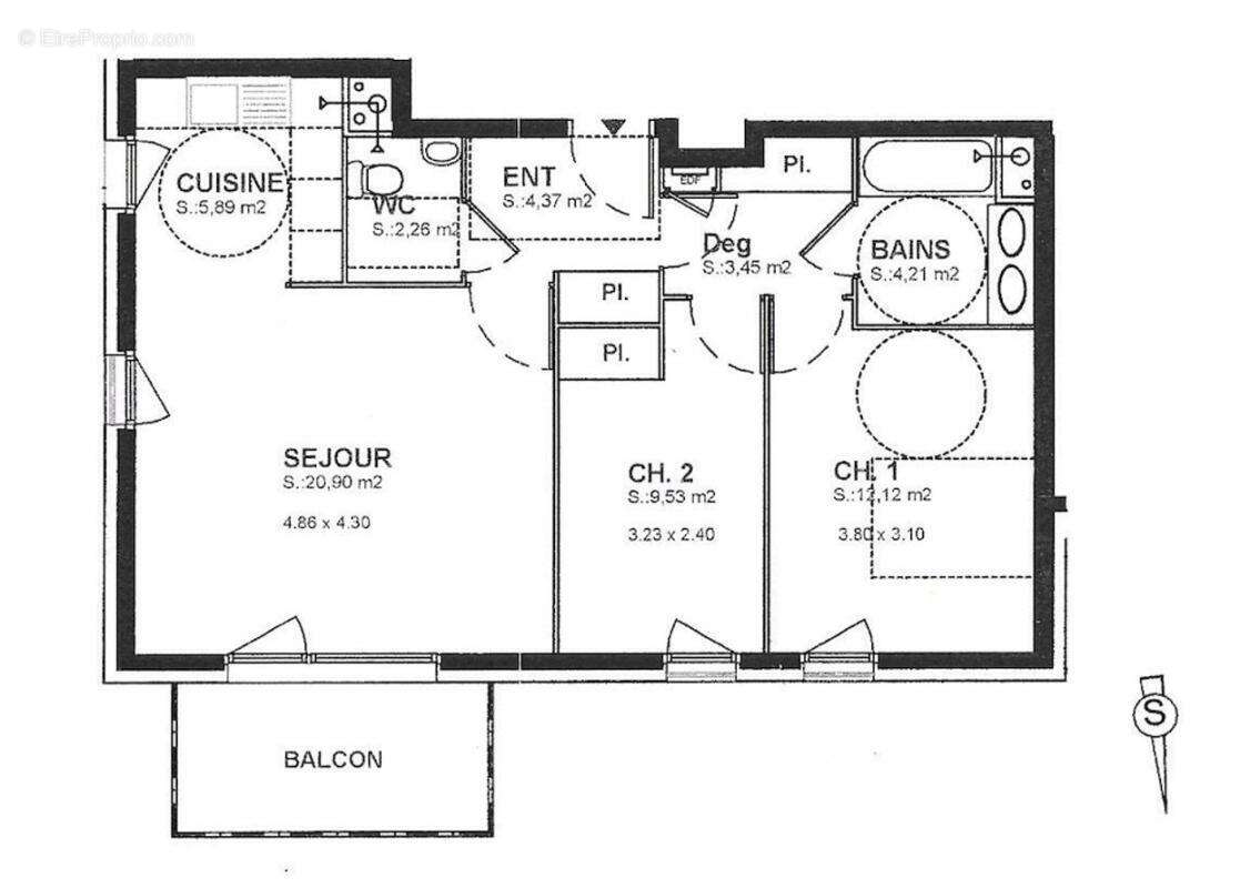
Construit en 2012, l'appartement bénéficie d'un excellent état général. Son exposition sud lui confère une luminosité optimale tout au long de la journée, créant ainsi une atmosphère chaleureuse et lumineuse. Il se compose d'une vaste entrée, avec placard, distribuant un séjour/salon avec cuisine équipée ouverte, donnant sur le balcon. un Wc séparé, une salle de bain et deux chambres avec placards complètent le bien.

La résidence est composée de matériaux de qualité tels que le béton, avec une toiture en bac acier et une façade en crépi en très bon état. L'étage du bien est en excellent état général, dans un immeuble bien entretenu.

Ne manquez pas l'opportunité de visiter cet appartement très confortable et fonctionnel, idéal pour une vie paisible et pratique limitrophe de Dijon et à proximité du CHU, de la Ligne T1, de la LiNO et de toutes commodités à moins de 5 minutes. Contactez-moi dès maintenant pour plus d'informations et/ou pour organiser une visite.
Les informations sur les risques auxquels ce bien est exposé sont disponibles sur le site Georisque : georisques. gouv. fr
Philippe Gatier - EI - est Agent Commercial mandataire en immobilier, immatriculé au Registre Spécial des Agents Commerciaux du Tribunal de Commerce de Dijon sous le n°882928526.
Siège social du mandant : effiCity, 48 avenue de Villiers - 75017 PARIS - Société par Actions Simplifiée, société au capital de 132 373,05 euros, immatriculée au RCS Paris 497 617 746 et titulaire de la Carte professionnelle CPI 75[Coordonnées masquées]02 025 - CCI Paris IDF - Caisse de Garantie : GALIAN Assurances 89 rue de la Boétie 75008 Paris
Voir plus

Référence: 199813
Bien en copropriété. Nombre de lots : 90. Charges de copropriété : 200 €.
Honoraires à la charge du vendeur.
Barème des honoraires
DPE
A
B
C
D
E
F
G
GES
A
B
C
D
E
F
G

Prêt immobilier

Vous souhaitez connaître votre capacité d’emprunt et trouver le meilleur crédit immobilier ?
Réaliser une simulation gratuite

Appartement à SAINT-APOLLINAIRE
Appartement à SAINT-APOLLINAIRE
Appartement à SAINT-APOLLINAIRE
Appartement à SAINT-APOLLINAIRE
Appartement à SAINT-APOLLINAIRE
Appartement à SAINT-APOLLINAIRE
Appartement à SAINT-APOLLINAIRE
Appartement à SAINT-APOLLINAIRE
Appartement à SAINT-APOLLINAIRE
Appartement à SAINT-APOLLINAIRE
Appartement à SAINT-APOLLINAIRE
Appartement à SAINT-APOLLINAIRE
Appartement à SAINT-APOLLINAIRE
Appartement à SAINT-APOLLINAIRE
Appartement à SAINT-APOLLINAIRE
Appartement à SAINT-APOLLINAIRE
Appartement à SAINT-APOLLINAIRE
Appartement à SAINT-APOLLINAIRE
Ce site est protégé par reCAPTCHA la Politique de confidentialité et les Conditions d’utilisation de Google s’appliquent.
Obtenir un prêt immobilier au meilleur taux ?

En poursuivant votre navigation sans modifier vos paramètres, vous acceptez l'utilisation de cookies susceptibles de réaliser des statistiques de visite. Cliquez ici pour plus d'informations