Bénéficiez des services de nos partenaires locaux soigneusement sélectionnés
pour vous accompagner dans votre parcours d'achat immobilier

Appartement 24m² à montreuil

— Montreuil 93100 —
225 000 €
25 m²
2 pièces

Nos partenaires locaux
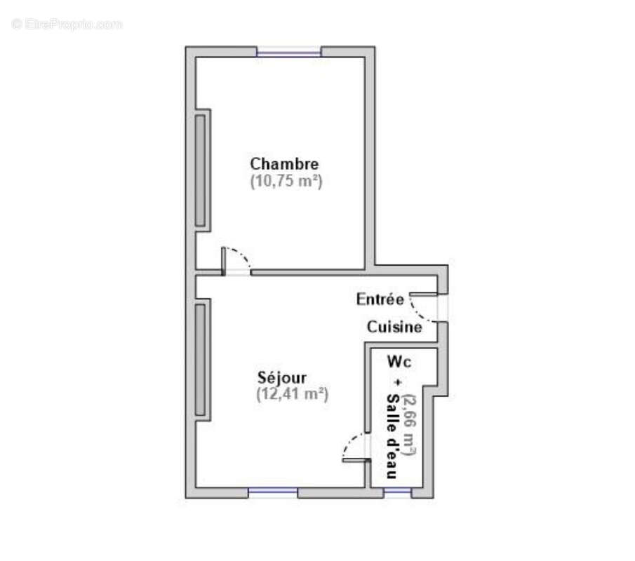
Nous vous proposons à 600m du métro Bérault et du RER Vincennes, dans une copropriété ancienne entièrement rénové, ne nécessitant aucun travaux, un charmant 2 pièces au 3 éme étage au calme comprenant une entrée avec une cuisine semi-ouverte aménagée et équipée, un séjour, une chambre avec placard et une salle d'eau avec WC. Une cave complète ce bien.

Nombre de lots : 24 dont 12 lots d'habitation.
Charges annuelles : 955€
Pas de procédure en cours.
Honoraires à la charge du vendeur.

La présente annonce immobilière a été rédigée sous la responsabilité éditoriale de Hawa DIARRA immatriculé au Registre des Sociétés du Tribunal de Commerce de Paris sous le numéro RCS : 937 605 921
Les informations sur les risques auxquels ce bien est exposé sont disponibles sur le site Géorisques : www.georisques.gouv.fr

La présente annonce immobilière a été rédigée sous la responsabilité éditoriale de Monsieur JAHMAN EI, Agent commercial inscrit au RSAC sous le numéro 830 556 502 Paris.


Les informations sur les risques auxquels ce bien est exposé sont disponibles sur le site Géorisques : www.georisques.gouv.fr
Voir plus

Référence: SWIX5738B
Bien en copropriété. Nombre de lots : 24. Charges de copropriété : 1680 €.
Honoraires à la charge du vendeur.
Barème des honoraires
DPE
A
B
C
D
E
F
G
GES
A
B
C
D
E
F
G

Prêt immobilier

Vous souhaitez connaître votre capacité d’emprunt et trouver le meilleur crédit immobilier ?
Réaliser une simulation gratuite

Appartement à MONTREUIL
Appartement à MONTREUIL
Appartement à MONTREUIL
Appartement à MONTREUIL
Appartement à MONTREUIL
Appartement à MONTREUIL
Appartement à MONTREUIL
Appartement à MONTREUIL
Ce site est protégé par reCAPTCHA la Politique de confidentialité et les Conditions d’utilisation de Google s’appliquent.
Obtenir un prêt immobilier au meilleur taux ?

En poursuivant votre navigation sans modifier vos paramètres, vous acceptez l'utilisation de cookies susceptibles de réaliser des statistiques de visite. Cliquez ici pour plus d'informations