Bénéficiez des services de nos partenaires locaux soigneusement sélectionnés
pour vous accompagner dans votre parcours d'achat immobilier

Appartement 32m² à paris-17e

— Paris-17e 75017 —
330 000 €
32 m²
2 pièces

Nos partenaires locaux
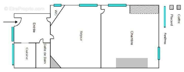
L'Immobilier Parisien vous présente ce bel appartement lumineux sur cour de 2 Pièces d'une surface de 32m², situé rue Legendre à quelques minutes à pied du métro Guy Moquet, dans un quartier jeune, dynamique et décontracté.
Il comprend : entrée, séjour, chambre, cuisine, salle d'eau et WC séparés.
Il est exposé plein Ouest et bénéficie d'une vue sur cour verdoyante. L'accès à un local vélos est prévu à court terme.
Charme de l'ancien : parquet, cheminée.
Clair et calme. Chauffage électrique, fenêtres double vitrage.
Une cave complète ce bien.
Proche tous commerces et transports.
Depuis 25 ans, nous sommes à votre service pour être le meilleur conseiller à chaque étape de vos projets.
L'Immobilier Parisien, la meilleure adresse pour trouver la vôtre !

Les informations sur les risques auxquels ce bien est exposé sont disponibles sur le site Géorisques : www.georisques.gouv.fr
Voir plus

Référence: IPAM3599B
Bien en copropriété. Nombre de lots : 32. Charges de copropriété : 1200 €.
Honoraires d'agence de 5.17% à la charge de l'acquéreur
Barème des honoraires
DPE
A
B
C
D
E
F
G
GES
A
B
C
D
E
F
G

Prêt immobilier

Vous souhaitez connaître votre capacité d’emprunt et trouver le meilleur crédit immobilier ?
Réaliser une simulation gratuite

Appartement à PARIS-17E
Appartement à PARIS-17E
Appartement à PARIS-17E
Appartement à PARIS-17E
Appartement à PARIS-17E
Appartement à PARIS-17E
Appartement à PARIS-17E
Appartement à PARIS-17E
Ce site est protégé par reCAPTCHA la Politique de confidentialité et les Conditions d’utilisation de Google s’appliquent.
Obtenir un prêt immobilier au meilleur taux ?

En poursuivant votre navigation sans modifier vos paramètres, vous acceptez l'utilisation de cookies susceptibles de réaliser des statistiques de visite. Cliquez ici pour plus d'informations