'opportunité a saisir ' murs commerciaux !!!

— Rennes 35700 —
178 000 €
247 m²

À vendre : Murs commerciaux avec potentiel exceptionnel !
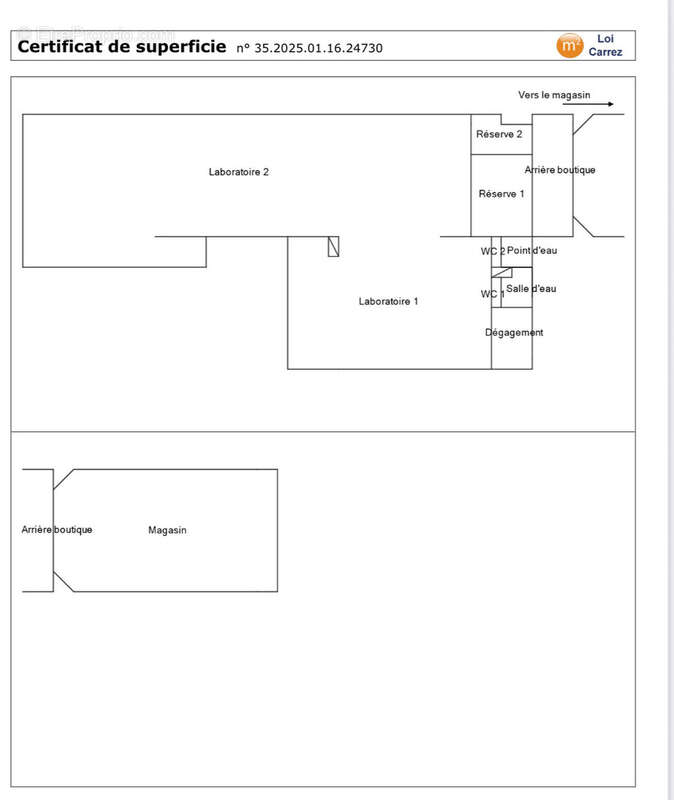
Nous vous proposons à la vente des murs commerciaux d’une superficie totale de 247 m2, comprenant :

Boutique : 61 m2, idéale pour accueillir votre activité.
Laboratoires, réserves, bureau, ainsi qu’une douche et des WC.

Cet espace, anciennement une boulangerie, est fermé depuis septembre 2024. Le matériel de boulangerie est inclus dans le prix, vous permettant de relancer rapidement l’activité ou d’adapter l’espace à d’autres besoins commerciaux.
De plus, vous avez la possibilité d’acquérir, en option et non inclus dans le prix, l’étage de la boulangerie, qui comprend deux appartements à rénoverd’une superficie de 207 m2, offrant un potentiel intéressant pour des revenus supplémentaires ou un projet de logement.
Caractéristiques :

Superficie totale des murs commerciaux : 247 m2
Superficie de la boutique : 61 m2
Matériel de boulangerie inclus dans le prix
Possibilité d’acquérir deux appartements de 207 m2 à rénover

Ne manquez pas cette occasion rare d’investir dans un espace multifonctionnel au cœur de la ville. Pour plus d’informations ou pour organiser une visite, n’hésitez pas à me  contacter !
Cette annonce vous est proposée par GUEZENNEC Sophie - EI - NoRSAC: 918 244 484, Enregistré à Greffe du tribunal de commerce de Rennes La présente annonce immobilière a été rédigée sous la responsabilité éditoriale de l'agent mandataire. Les informations sur les risques auxquels ce bien est exposé sont disponibles sur le site Géorisques : www.georisques.gouv.fr - Annonce rédigée et publiée par un Agent Mandataire -
Voir plus

Référence: 5144
Barème des honoraires
DPE
A
B
C
D
E
F
G
GES
A
B
C
D
E
F
G

Prêt immobilier

Vous souhaitez connaître votre capacité d’emprunt et trouver le meilleur crédit immobilier ?
Réaliser une simulation gratuite

Commerce à RENNES
Commerce à RENNES
Commerce à RENNES
Commerce à RENNES
Ce site est protégé par reCAPTCHA la Politique de confidentialité et les Conditions d’utilisation de Google s’appliquent.
Obtenir un prêt immobilier au meilleur taux ?

En poursuivant votre navigation sans modifier vos paramètres, vous acceptez l'utilisation de cookies susceptibles de réaliser des statistiques de visite. Cliquez ici pour plus d'informations