Bénéficiez des services de nos partenaires locaux soigneusement sélectionnés
pour vous accompagner dans votre parcours d'achat immobilier

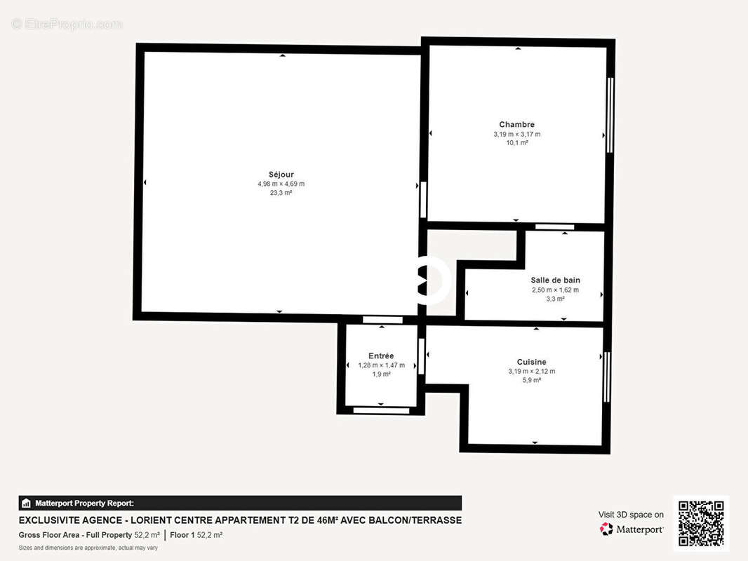
Exclusivite agence - appartement t2 de 46m² bien expose avec balcon/terrasse de 8m²

— Lorient 56100 —
138 450 €
46 m²
2 pièces
balcon/terrasse

Nos partenaires locaux
EXCLUVITE AGENCE - APPARTEMENT T2 de 46m² BIEN EXPOSE AVEC BALCON/TERRASSE Découvrez cet appartement de 2 pièces situé au 2ème étage sur 3 de l'une des entrées de la banane, immeuble historique de LORIENT. Rénovation globale de la copropriété votée sur en assemblée générale et charge vendeur (isolation extérieure, cages d'escaliers, ventilations...). Copropriété gérée par notre agence BARRAINE IMMO LORIENT. Avec une surface de 46 m² sur parquets anciens, cet appartement traversant se compose d'une entrée, d'une confortable pièce à vivre de 24m², d'une cuisine indépendante, d'une chambre à l'Est de 11m² et d'une salle d'eau attenante (fenetre et branchement machine à laver). Profitez également d'une terrasse de 8 m² bien exposée avec vue dégagée, idéale pour vos moments de détente. Le chauffage est assuré par une chaudière au gaz de ville et un radiateur, et une cheminée ajoute une touche chaleureuse à l'espace. L'appartement est en bon état, avec des fenêtres en PVC et des volets également en PVC. Vous bénéficierez d'une cave et d'un séchoir pour le rangement et d'une connexion à la fibre optique. Idéalement situé, vous serez à moins d'un kilomètre des commerces, à seulement 1 minute d'un arrêt de bus et à 5 minutes des écoles. La mer est à 5 km, parfait pour profiter des activités nautiques. Prix 138450 euros Frais d'agence inclus dont 6,5% à charge acquéreur. DPE classé D avant rénovation énergétique. Ne manquez pas cette opportunité, contactez l'Agence Barraine IMMO Lorient pour plus d'informations et pour organiser une visite ! (6.50 % honoraires TTC à la charge de l'acquéreur.) Copropriété de 10 lots - dont 10 lots habitation. (Pas de procédure en cours). Charges annuelles : 1026.44 euros.
Voir plus

Référence: LT00371-MB
Bien en copropriété. Nombre de lots : 10. Charges de copropriété : 1026 €.
Honoraires d'agence de 6.5% à la charge de l'acquéreur
Barème des honoraires
DPE
A
B
C
D
E
F
G
GES
A
B
C
D
E
F
G

Prêt immobilier

Vous souhaitez connaître votre capacité d’emprunt et trouver le meilleur crédit immobilier ?
Réaliser une simulation gratuite

Appartement à LORIENT
Appartement à LORIENT
Appartement à LORIENT
Appartement à LORIENT
Appartement à LORIENT
Appartement à LORIENT
Appartement à LORIENT
Appartement à LORIENT
Appartement à LORIENT
Appartement à LORIENT
Appartement à LORIENT
Appartement à LORIENT
Appartement à LORIENT
Appartement à LORIENT
Appartement à LORIENT
Appartement à LORIENT
Appartement à LORIENT
Appartement à LORIENT
Appartement à LORIENT
Appartement à LORIENT
Ce site est protégé par reCAPTCHA la Politique de confidentialité et les Conditions d’utilisation de Google s’appliquent.
Obtenir un prêt immobilier au meilleur taux ?

En poursuivant votre navigation sans modifier vos paramètres, vous acceptez l'utilisation de cookies susceptibles de réaliser des statistiques de visite. Cliquez ici pour plus d'informations