Bénéficiez des services de nos partenaires locaux soigneusement sélectionnés
pour vous accompagner dans votre parcours d'achat immobilier

Maison blanche - studio de 27m2

— Paris-13e 75013 —
255 000 €
27 m²
1 pièce
ascenseur

Nos partenaires locaux
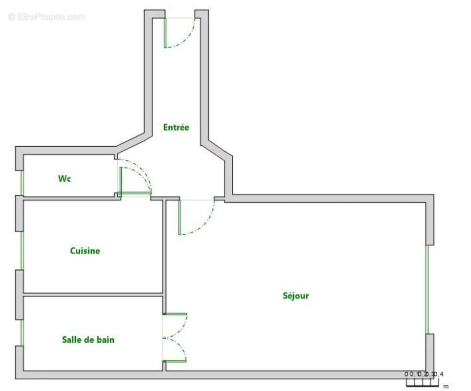
MAISON BLANCHE - À proximité des commerces et des transports (station Maison Blanche - lignes 7 et 14, ainsi que le Tramway T3), nous vous proposons, au 3ème étage avec ascenseur d'un immeuble de 1933 aux parties communes bien entretenues, un studio traversant de 26,64m2 Loi Carrez.

Cet appartement est composé d'une entrée, d'une pièce de vie sur une cour au calme, d'une cuisine indépendante, d'une salle de bains et d'un WC séparé. Toutes les les pièces d'eau bénéficient d'une fenêtre permettant une aération naturelle.

Ce studio vous séduira par sa luminosité et son calme.
Une cave complète ce bien.
Voir plus

Référence: 86461665
Barème des honoraires
DPE
A
B
C
D
E
F
G
GES
A
B
C
D
E
F
G

Prêt immobilier

Vous souhaitez connaître votre capacité d’emprunt et trouver le meilleur crédit immobilier ?
Réaliser une simulation gratuite

Appartement à PARIS-13E
Appartement à PARIS-13E
Appartement à PARIS-13E
Appartement à PARIS-13E
Appartement à PARIS-13E
Appartement à PARIS-13E
Appartement à PARIS-13E
Appartement à PARIS-13E
Appartement à PARIS-13E
Appartement à PARIS-13E
Appartement à PARIS-13E
Ce site est protégé par reCAPTCHA la Politique de confidentialité et les Conditions d’utilisation de Google s’appliquent.
Obtenir un prêt immobilier au meilleur taux ?

En poursuivant votre navigation sans modifier vos paramètres, vous acceptez l'utilisation de cookies susceptibles de réaliser des statistiques de visite. Cliquez ici pour plus d'informations