Bénéficiez des services de nos partenaires locaux soigneusement sélectionnés
pour vous accompagner dans votre parcours d'achat immobilier

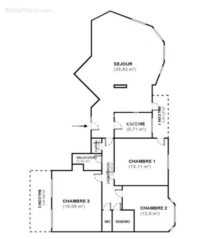
Appartement paris 4 pièces 3 chambres de 102 m²

— Paris-14e 75014 —
1 075 000 €
102 m²
4 pièces
balcon/terrasseascenseur

Nos partenaires locaux
Laforêt Boulard - [Coordonnées masquées]5, vous propose de visiter un agréable appartement familial, situé entre Port Royal et Denfert-Rochereau, au calme, en double exposition et très bien agencé. Ce bien vous séduira par sa belle de pièce de vie de 36 m², sans vis à vis avec un accès à un balcon, une cuisine indépendante qui peut s'ouvrir sur le séjour, trois grandes chambres dont une avec terrasse, deux points d'eau (salle de bains et salle d'eau), 2 WC dont un indépendant et de nombreux rangements. Vendu avec une cave et possibilité d'acquérir un double box en supplément dans l'immeuble. A proximité des écoles : MATERNELLE PUBLIQUE JEAN DOLENT, PRIMAIRE PUBLIQUE ARAGO, COLLEGE SAINT-EXUPERY et ECOLE PRIVEE NOTRE DAME DE FRANCE. Transports : Métro Ligne 6/4 et RER B Denfert-Rochereau Glacière, Saint Jacques, Port Royal (6.44 % honoraires TTC à la charge de l'acquéreur.) Copropriété de 264 lots - dont 91 lots habitation. (Pas de procédure en cours). Charges annuelles : 3436 euros.
Voir plus

Référence: 2215
Bien en copropriété. Nombre de lots : 264. Charges de copropriété : 3436 €.
Honoraires d'agence de 6.44% à la charge de l'acquéreur
Barème des honoraires
DPE
A
B
C
D
E
F
G
GES
A
B
C
D
E
F
G

Prêt immobilier

Vous souhaitez connaître votre capacité d’emprunt et trouver le meilleur crédit immobilier ?
Réaliser une simulation gratuite

Appartement à PARIS-14E
Appartement à PARIS-14E
Appartement à PARIS-14E
Appartement à PARIS-14E
Ce site est protégé par reCAPTCHA la Politique de confidentialité et les Conditions d’utilisation de Google s’appliquent.
Obtenir un prêt immobilier au meilleur taux ?

En poursuivant votre navigation sans modifier vos paramètres, vous acceptez l'utilisation de cookies susceptibles de réaliser des statistiques de visite. Cliquez ici pour plus d'informations