Bénéficiez des services de nos partenaires locaux soigneusement sélectionnés
pour vous accompagner dans votre parcours d'achat immobilier

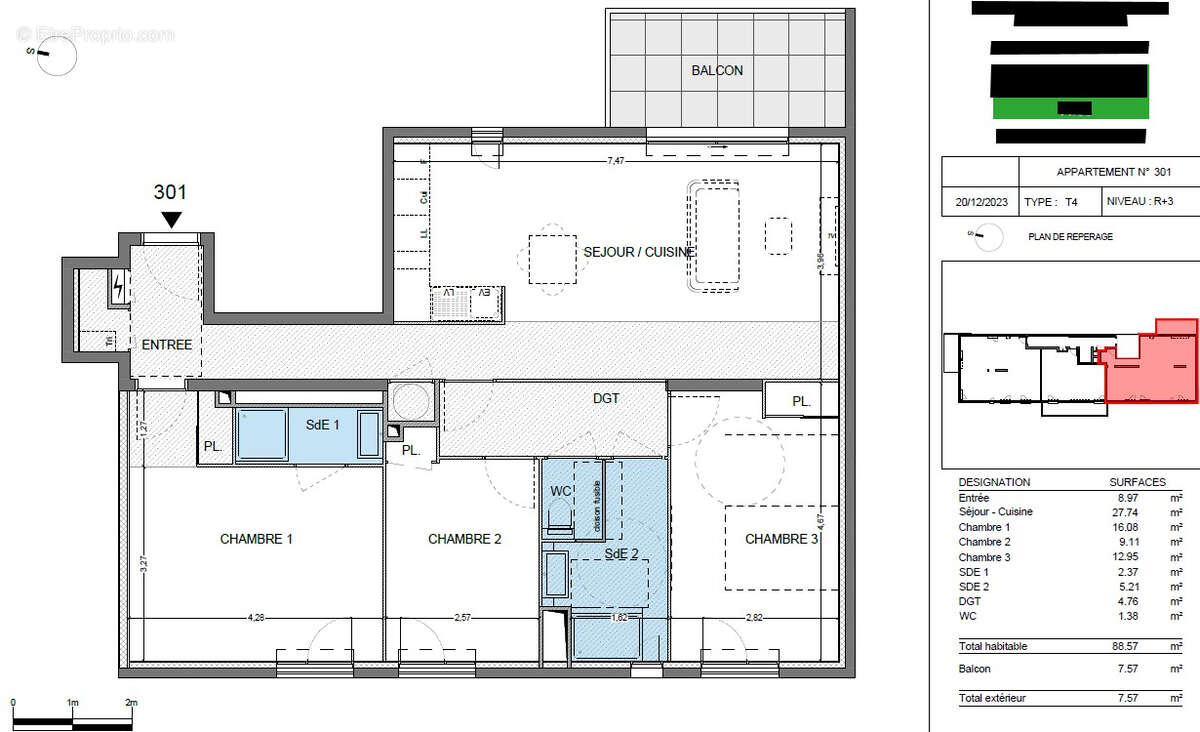
Appartement nice 4 pièce(s) 88.57 m2

— Nice 06000 —
599 000 €
89 m²
4 pièces

Nos partenaires locaux
PROGRAMME NEUF-LIVRAISON DANS 4 MOIS- JANVIER 2026 Corniche Sainte- Rosalie, à 10 minutes du centre-ville et à 15 minutes de la mer. Au sein du quartier très calme Sainte-Rosalie-Arbre inférieur, nous vous proposons un T2 avec balcon dans une résidence intimiste de 15 appartements un emplacement privilégié à proximité des transports, des écoles, collège et lycée, Au troisième et dernier étage avec ascenseur, appartement de quatre pièces composé d'un séjour avec cuisine de 27 M² donnant sur le balcon de 7,57 M², deux chambres de 9 et 12,95 M² avec une salle d'eau et WC indépendant et une suite parentale de 18 M² avec salle d'eau privative. POSSIBILITE DE PARKING EN SUS (26 000 euros) Contactez le [Coordonnées masquées] pour toute demande d'information Siham BOUZERA, agent commercial, inscrit au Registre spécial des Agents commerciaux sous le numéro 932 791 445. Copropriété de 15 lots ().
Voir plus

Honoraires à la charge du vendeur.
Barème des honoraires
DPE
A
B
C
D
E
F
G
GES
A
B
C
D
E
F
G

Prêt immobilier

Vous souhaitez connaître votre capacité d’emprunt et trouver le meilleur crédit immobilier ?
Réaliser une simulation gratuite

Appartement à NICE
Appartement à NICE
Appartement à NICE
Appartement à NICE
Appartement à NICE
Ce site est protégé par reCAPTCHA la Politique de confidentialité et les Conditions d’utilisation de Google s’appliquent.
Obtenir un prêt immobilier au meilleur taux ?

En poursuivant votre navigation sans modifier vos paramètres, vous acceptez l'utilisation de cookies susceptibles de réaliser des statistiques de visite. Cliquez ici pour plus d'informations