A vendre - paris 16e chaillot - 4 pièces - 105m²

— Paris-16e 75116 —
1 785 000 €
105 m²
4 pièces
ascenseur

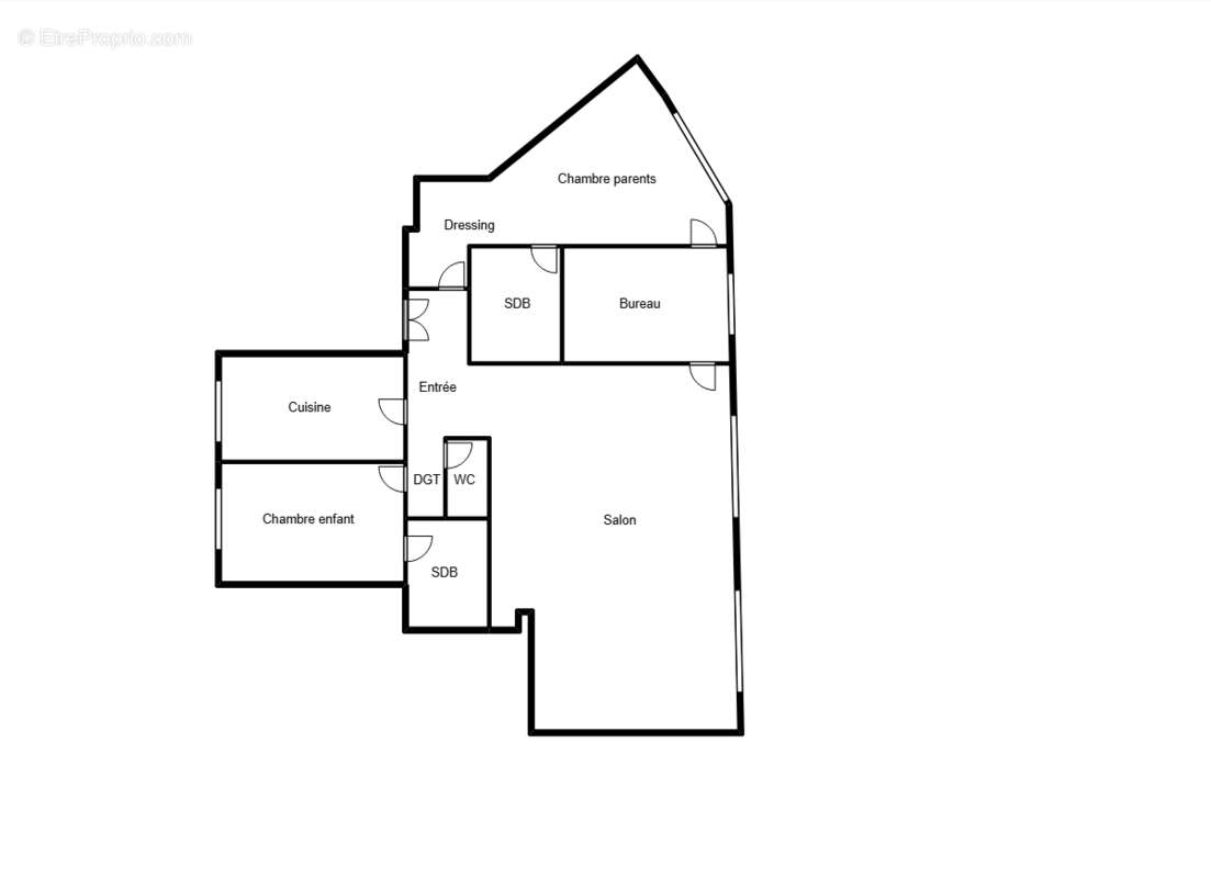
Paris 16e Chaillot - 4 Pièces Appartement de 105m² situé au 5ème étage par ascenseur au sein d'un immeuble récent de bon standing avec gardienne. Entrée, séjour exposé sud-est, cuisine indépendante aménagée et équipée, 2 chambres en suite avec salles de bain et 2 WC, un bureau. Appartement en excellent état, entièrement rénové et disposant d'un bon agencement. Une cave et un emplacement de parking dans l'immeuble complètent ce bien. Idéalement situé à proximité directe du Trocadéro, des transports (lignes 9) et de toutes commodités. Sectorisation Janson De Sailly. Depuis 1993, BUILDING PARTNERS accompagne les propriétaires dans la vente de biens immobiliers de standing sur l'ouest parisien. Notre force ? Une organisation unique avec deux rôles experts : >Les Brokers, spécialisés dans la prospection et la valorisation de votre bien. >Les Sellers, experts en négociation et en mise en relation avec notre portefeuille d'acheteurs qualifiés. Avec 5 agences implantées au coeur des quartiers les plus recherchés (Paris 16e, Paris 17e, Neuilly, Levallois, Courbevoie), nous vous offrons une visibilité maximale, un accompagnement personnalisé et un engagement total jusqu'à la signature. Confiez-nous votre bien pour une vente rapide, au meilleur prix. Estimation offerte, confidentielle et sans engagement. Copropriété de 145 lots - dont 54 lots habitation. (Pas de procédure en cours). Charges annuelles : 7557.52 euros.
Voir plus

Référence: 12117
Bien en copropriété. Nombre de lots : 145. Charges de copropriété : 7557 €.
Honoraires à la charge du vendeur.
Barème des honoraires
DPE
A
B
C
D
E
F
G
GES
A
B
C
D
E
F
G

Prêt immobilier

Vous souhaitez connaître votre capacité d’emprunt et trouver le meilleur crédit immobilier ?
Réaliser une simulation gratuite

Appartement à PARIS-16E
Appartement à PARIS-16E
Appartement à PARIS-16E
Appartement à PARIS-16E
Appartement à PARIS-16E
Appartement à PARIS-16E
Appartement à PARIS-16E
Appartement à PARIS-16E
Appartement à PARIS-16E
Appartement à PARIS-16E
Appartement à PARIS-16E
Appartement à PARIS-16E
Appartement à PARIS-16E
Ce site est protégé par reCAPTCHA la Politique de confidentialité et les Conditions d’utilisation de Google s’appliquent.
Obtenir un prêt immobilier au meilleur taux ?

En poursuivant votre navigation sans modifier vos paramètres, vous acceptez l'utilisation de cookies susceptibles de réaliser des statistiques de visite. Cliquez ici pour plus d'informations