Bénéficiez des services de nos partenaires locaux soigneusement sélectionnés
pour vous accompagner dans votre parcours d'achat immobilier

Appartement 71m² à terrats

— Terrats 66300 —
189 000 €
71 m²
4 pièces

Nos partenaires locaux
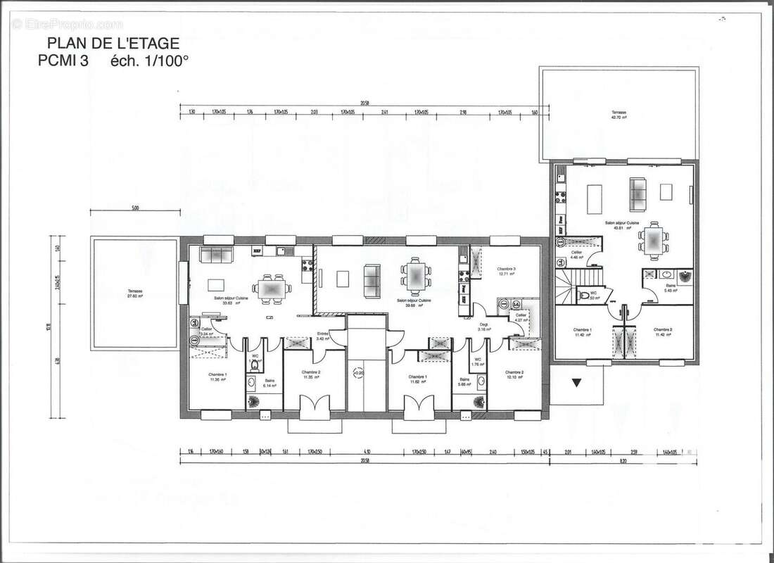
Iad France - Jose Xambili vous propose : Exclusivité : DERNIER LOT DISPONIBLE : Appartement T3 NEUF (toutes les informations de surfaces sont sur le plan de vente en PJ) situé sur la commune de TERRATS, livraison au mois AVRIL 2026, Le bien est situé dans une impasse très calme, d'une surface habitable d'environ 71 m² environ avec terrasse, au 1er étage au sein d'une petite indivision de 5 logements et soumis aux normes RT 2020, avec assurance décennale et dommages ouvrage, syndic bénévole, pas de charges, entrée indépendante.
Appartement moderne avec personnalisation des matériaux (cuisine, meubles sdb, carrelage etc ). Édifié sur 3 faces traversantes, avec vue dégagée, très bonne exposition sans vis-à-vis, il dispose d'un grand garage de 23 m², une grande terrasse, un jardin de 40 m² environ et 2 places de parking privative.
Côté confort : menuiseries ALU et PVC, double vitrage, volets roulants électriques, climatisation connectée dans la pièce à vivre, carrelage 60x60, pré raccordement fibre. Idéalement situé à proximité de Thuir (7 mn).
Le bien se compose d'un séjour / cuisine US équipée de sont électroménagers, ouvert sur une terrasse de 23 m², de 2 chambres chacune avec espace placard, d'une salle de bain avec douche à l'italienne, et d'un WC indépendant. Commodités et commerces à proximité, écoles, poste, caves etc.


Honoraires d'agence à la charge du vendeur.
Information d'affichage énergétique sur ce bien : classe ENERGIE B indice 72 et classe CLIMAT A indice 2. Les informations sur les risques auxquels ce bien est exposé, y compris l'obligation légale de débroussaillement, sont disponibles sur le site Géorisques : http://www.georisques.gouv.fr.
La présente annonce immobilière a été rédigée sous la responsabilité éditoriale de M Jose Xambili mandataire indépendant en immobilier (sans détention de fonds), agent commercial de la SAS I@D France immatriculé au RSAC de PERPIGNAN sous le numéro 798457578, titulaire de la carte de démarchage immobilier pour le compte de la société I@D France SAS.
Informations LOI ALUR :
Honoraires charge vendeur. (gedeon_6727_30867999)
Voir plus

Référence: 1715169
Honoraires à la charge du vendeur.
DPE
A
B
C
D
E
F
G
GES
A
B
C
D
E
F
G

Prêt immobilier

Vous souhaitez connaître votre capacité d’emprunt et trouver le meilleur crédit immobilier ?
Réaliser une simulation gratuite

Photo 1 - Appartement à TERRATS
Photo 1
Photo 2 - Appartement à TERRATS
Photo 2
Photo 3 - Appartement à TERRATS
Photo 3
Photo 4 - Appartement à TERRATS
Photo 4
Photo 5 - Appartement à TERRATS
Photo 5
Ce site est protégé par reCAPTCHA la Politique de confidentialité et les Conditions d’utilisation de Google s’appliquent.
Obtenir un prêt immobilier au meilleur taux ?

En poursuivant votre navigation sans modifier vos paramètres, vous acceptez l'utilisation de cookies susceptibles de réaliser des statistiques de visite. Cliquez ici pour plus d'informations