Pas de commerce à Bras pour le moment. Découvrez dès maintenant les commerces dans le département Var.
Bénéficiez des services de nos partenaires locaux soigneusement sélectionnés
pour vous accompagner dans votre parcours d'achat immobilier

Appartement 60m² à paris-13e

— Paris-13e 75013 —
520 000 €
60 m²
2 pièces
ascenseuraccès handicapé

Nos partenaires locaux
À vendre – Paris 13 – Métro Glacière
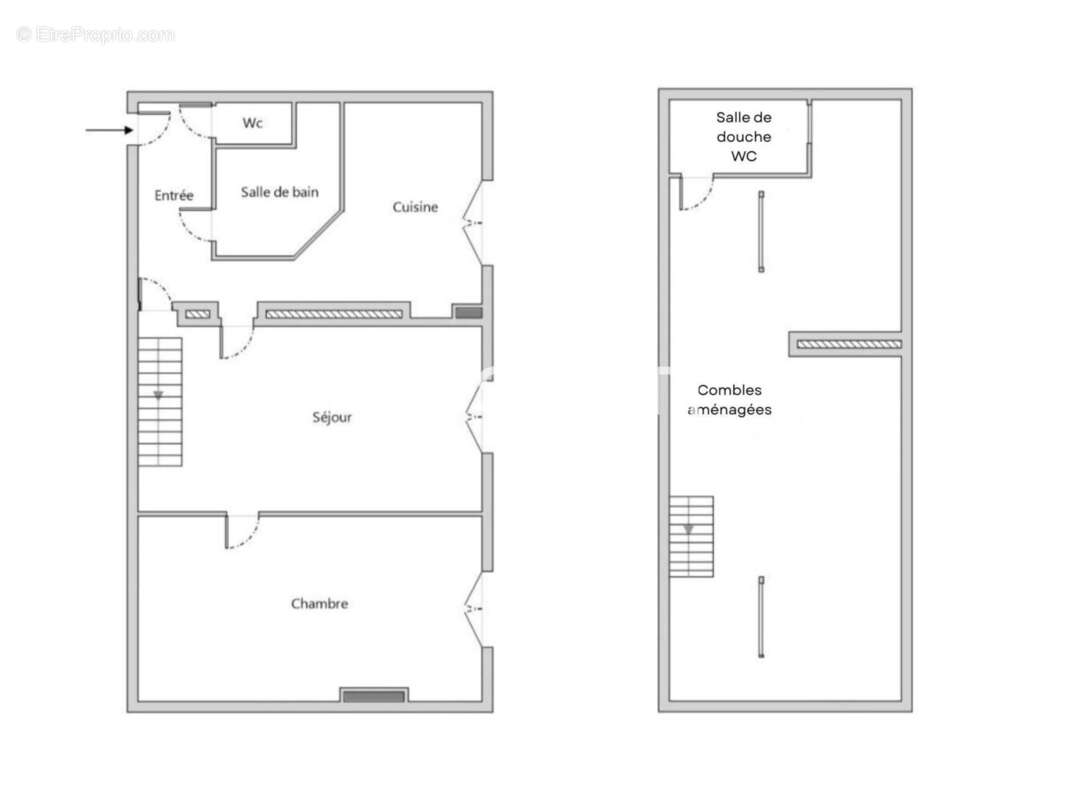
Dans une résidence de 1900 bien entretenue, située dans une rue calme, découvrez ce 2 pièces lumineux de 55.3 m² Carrez (83 m² au sol), au 6 ? étage avec ascenseur et bénéficiant de combles aménagés. À proximité immédiate des commerces et de la ligne 6.

L'appartement comprend une entrée, un salon, une cuisine séparée, une chambre, une salle de bains et un WC indépendant. À l'étage, les combles ont été aménagés en une pièce supplémentaire avec salle de douche et WC. Chauffage et eau chaude individuels au gaz. Travaux de rafraîchissement à prévoir.

Une opportunité rare dans un environnement agréable et pratique au coeur de Paris. Idéal investisseur.
Contactez-moi pour organiser une visite.

Le bien comprend 2 lots, et il est situé dans une copropriété de 40 lots (les charges courantes annuelles moyennes de copropriété sont de 2000 ¤ et le syndicat des copropriétaires ne fait pas l'objet d'une procédure citée à l'article L. 721-1 du code de la construction et de l'habitation).

Les informations sur les risques auxquels ce bien est exposé sont disponibles sur le site Géorisques : www.georisques.gouv.fr
Prix de vente : 520 000 ¤
Honoraires charge vendeur

Contactez votre conseiller SAFTI : Jean-Charles SICARD, Tél. : [Coordonnées masquées], E-mail : [Coordonnées masquées] - EI - Agent commercial immatriculé au RSAC de PARIS sous le numéro 844 328 104.
Informations LOI ALUR :
Soumis au régime de copropriété.
Nombre de lots : 40.
Quote part annuelle(moyenne) : 2000 euros.
Honoraires charge vendeur. (gedeon_26118_32186858)
Voir plus

Référence: 1560175
Bien en copropriété. Nombre de lots : 40. Charges de copropriété : 2000 €.
Honoraires à la charge du vendeur.
Barème des honoraires
DPE
A
B
C
D
E
F
G
GES
A
B
C
D
E
F
G

Prêt immobilier

Vous souhaitez connaître votre capacité d’emprunt et trouver le meilleur crédit immobilier ?
Réaliser une simulation gratuite

Photo 1 - Appartement à PARIS-13E
Photo 1
Photo 2 - Appartement à PARIS-13E
Photo 2
Photo 3 - Appartement à PARIS-13E
Photo 3
Photo 4 - Appartement à PARIS-13E
Photo 4
Photo 5 - Appartement à PARIS-13E
Photo 5
Photo 6 - Appartement à PARIS-13E
Photo 6
Photo 7 - Appartement à PARIS-13E
Photo 7
Photo 8 - Appartement à PARIS-13E
Photo 8
Photo 9 - Appartement à PARIS-13E
Photo 9
Ce site est protégé par reCAPTCHA la Politique de confidentialité et les Conditions d’utilisation de Google s’appliquent.
Obtenir un prêt immobilier au meilleur taux ?

En poursuivant votre navigation sans modifier vos paramètres, vous acceptez l'utilisation de cookies susceptibles de réaliser des statistiques de visite. Cliquez ici pour plus d'informations