Pas de parking à Le Gouray pour le moment. Découvrez dès maintenant les parkings dans le département Côtes-d'Armor.
Bénéficiez des services de nos partenaires locaux soigneusement sélectionnés
pour vous accompagner dans votre parcours d'achat immobilier

Appartement 66m² à grenoble

— Grenoble 38100 —
230 000 €
67 m²
3 pièces
balcon/terrasseascenseuraccès handicapé

Nos partenaires locaux
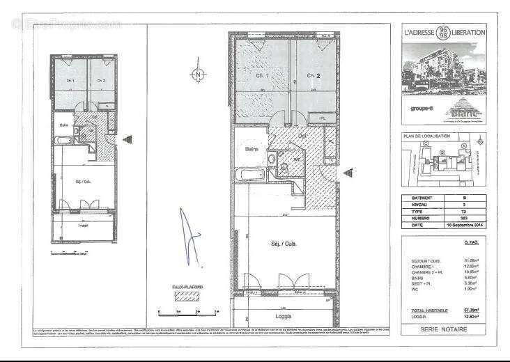
Grenoble, beau 3 p+c de 66.84 m² + terrasse de 12.60 m² situé au 3ème étage dans une résidence de 2016. Cet appartement traversant est composé d'une belle pièce de vie avec cuisine équipée de 27 m² ouvrant sur la terrasse, d'un coin nuit avec 2 chambres et salle de bain. La construction récente permet à cet appartement d'obtenir une excellente note énergétique, il dispose de double vitrage PVC, de volets roulants électriques. Le chauffage et l' eaux sont collectifs (sous compteurs compris dans les charges). Garage en sous-sol possible en sus du prix.

Honoraires à la charge du vendeur. Dans une copropriété de 50 lots. Aucune procédure n'est en cours. Classe énergie B, Classe climat B Montant moyen estimé des dépenses annuelles d'énergie pour un usage standard, établi à partir des prix de l'énergie de l'année 2021 : entre 400.00 et 590.00 €. Les informations sur les risques auxquels ce bien est exposé sont disponibles sur le site Géorisques : georisques.gouv.fr.
Voir plus

Référence: 1540-VALORIS38000GRE
Bien en copropriété. Nombre de lots : 50.
Honoraires à la charge du vendeur.
Barème des honoraires
DPE
A
B
C
D
E
F
G
GES
A
B
C
D
E
F
G

Prêt immobilier

Vous souhaitez connaître votre capacité d’emprunt et trouver le meilleur crédit immobilier ?
Réaliser une simulation gratuite

Appartement à GRENOBLE
Appartement à GRENOBLE
Appartement à GRENOBLE
Appartement à GRENOBLE
Appartement à GRENOBLE
Appartement à GRENOBLE
Appartement à GRENOBLE
Appartement à GRENOBLE
Appartement à GRENOBLE
Ce site est protégé par reCAPTCHA la Politique de confidentialité et les Conditions d’utilisation de Google s’appliquent.
Obtenir un prêt immobilier au meilleur taux ?

En poursuivant votre navigation sans modifier vos paramètres, vous acceptez l'utilisation de cookies susceptibles de réaliser des statistiques de visite. Cliquez ici pour plus d'informations