Bénéficiez des services de nos partenaires locaux soigneusement sélectionnés
pour vous accompagner dans votre parcours d'achat immobilier

Appartement 36m² à grenoble

— Grenoble 38000 —
110 000 €
36 m²
2 pièces

Nos partenaires locaux
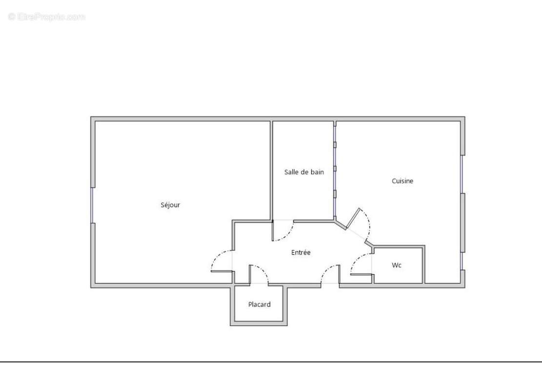
T1 bis lumineux Secteur Estacade / Hyper Centre – Beau Potentiel LocatifSitué dans le secteur recherché de l'Estacade, rue Joseph Rey, à deux pas du marché et à proximité immédiate de l'hyper centre, ce charmant T1 bis de 36 m² au 3ème étage d'une copropriété bien entretenue saura vous séduire par sa luminosité et son fort potentiel d'aménagement. Potentiel locatif d'environ 650€ HC/ mois. L'appartement comprend actuellement une pièce de vie (chambre/salon), une salle de bains, une cuisine équipée et des WC séparés. Il est facilement transformable en T2. Bon état général et prestations confortables :- Double vitrage PVC- Chauffage individuel au gaz (chaudière récente)- Bonne performance énergétique DPE DCave, grenier et local vélo.Que vous soyez investisseur ou acquéreur en résidence principale, vous apprécierez l'emplacement stratégique, le calme de la copropriété, et les possibilités d'optimisation de l'espace.

Honoraires à la charge du vendeur. Dans une copropriété de 13 lots. Quote-part moyenne du budget prévisionnel 726 €/an. Aucune procédure n'est en cours. Classe énergie D, Classe climat D Montant estimé des dépenses annuelles d'énergie pour un usage standard : entre 820.00 € et 1170.00 € sur les années 2021, 2022 et 2023 (abonnements compris). Les informations sur les risques auxquels ce bien est exposé sont disponibles sur le site Géorisques : georisques.gouv.fr. Ce bien vous est proposé par un agent commercial (Entreprise individuelle).

Votre conseiller Valoris Immobilier Grenoble : Fanny BLANDINO
Agent commercial (Entreprise individuelle)
RSAC 814422705 RSAC Grenoble
Voir plus

Référence: 1542-VALORIS38000GRE
Bien en copropriété. Nombre de lots : 13. Charges de copropriété : 726 €.
Honoraires à la charge du vendeur.
Barème des honoraires
DPE
A
B
C
D
E
F
G
GES
A
B
C
D
E
F
G

Prêt immobilier

Vous souhaitez connaître votre capacité d’emprunt et trouver le meilleur crédit immobilier ?
Réaliser une simulation gratuite

Appartement à GRENOBLE
Appartement à GRENOBLE
Appartement à GRENOBLE
Appartement à GRENOBLE
Appartement à GRENOBLE
Appartement à GRENOBLE
Appartement à GRENOBLE
Appartement à GRENOBLE
Ce site est protégé par reCAPTCHA la Politique de confidentialité et les Conditions d’utilisation de Google s’appliquent.
Obtenir un prêt immobilier au meilleur taux ?

En poursuivant votre navigation sans modifier vos paramètres, vous acceptez l'utilisation de cookies susceptibles de réaliser des statistiques de visite. Cliquez ici pour plus d'informations