Bénéficiez des services de nos partenaires locaux soigneusement sélectionnés
pour vous accompagner dans votre parcours d'achat immobilier

Maison de ville métro marcel sambat

— Boulogne-Billancourt 92100 —
1 215 000 €
165 m²
8 pièces

Nos partenaires locaux
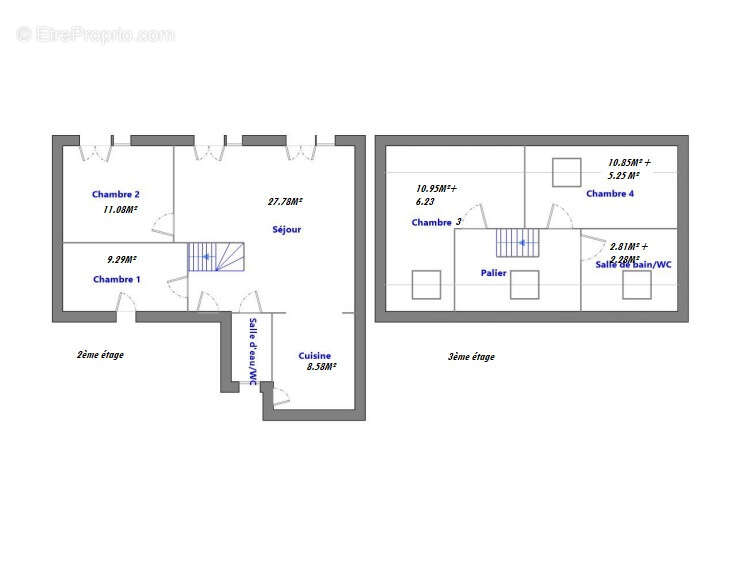
Maison de ville Rue du Vieux Pont de Sèvres, à 5 min du métro Marcel Sembat et des commerces. Très lumineuse et traversante, elle se compose au 1er étage d’un appartement de 57 m2 comprenant une entrée, un séjour, deux chambres, une cuisine et une salle de douche avec WC. Aux 2ᵉ et 3ᵉ étages, un duplex offrant un séjour de 27 m2 avec cuisine américaine attenante, deux chambres, une salle de douche et un WC au 2ᵉ étage, ainsi que deux grandes chambres de 16 m2 et 17 m2, une salle de bain et un WC au 3ᵉ étage. Isolation thermique incluse dans le prix, permettant d’atteindre un DPE en classe D. Idéal pour une famille, une colocation ou un investissement. Pour plus d’informations ou organiser une visite, contactez-nous.
Voir plus

Barème des honoraires
DPE
A
B
C
D
E
F
G
GES
A
B
C
D
E
F
G

Prêt immobilier

Vous souhaitez connaître votre capacité d’emprunt et trouver le meilleur crédit immobilier ?
Réaliser une simulation gratuite

Appartement à BOULOGNE-BILLANCOURT
Appartement à BOULOGNE-BILLANCOURT
Appartement à BOULOGNE-BILLANCOURT
Appartement à BOULOGNE-BILLANCOURT
Appartement à BOULOGNE-BILLANCOURT
Appartement à BOULOGNE-BILLANCOURT
Appartement à BOULOGNE-BILLANCOURT
Appartement à BOULOGNE-BILLANCOURT
Appartement à BOULOGNE-BILLANCOURT
Appartement à BOULOGNE-BILLANCOURT
Appartement à BOULOGNE-BILLANCOURT
Appartement à BOULOGNE-BILLANCOURT
Appartement à BOULOGNE-BILLANCOURT
Appartement à BOULOGNE-BILLANCOURT
Appartement à BOULOGNE-BILLANCOURT
Appartement à BOULOGNE-BILLANCOURT
Ce site est protégé par reCAPTCHA la Politique de confidentialité et les Conditions d’utilisation de Google s’appliquent.
Obtenir un prêt immobilier au meilleur taux ?

En poursuivant votre navigation sans modifier vos paramètres, vous acceptez l'utilisation de cookies susceptibles de réaliser des statistiques de visite. Cliquez ici pour plus d'informations