Appartement 111m² à paris-3e

— Paris-3e 75003 —
1 290 000 €
111 m²
4 pièces

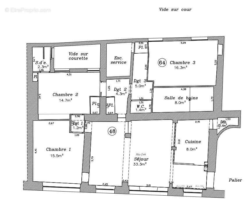
Découvrez cet appartement T4 de 111,40 m², situé au premier étage d'un immeuble ancien ravalé. Il combine le charme de l'ancien avec un bon niveau de confort et un agencement fonctionnel, avec une double exposition Sud-Nord.
Le bien dispose d'un séjour agréable de 33 m², avec 3 fenêtres en double-vitrage, orienté sud-ouest, donnant sur une rue calme, à sens unique. La cuisine américaine, aménagée et équipée, constitue un atout pour ceux qui recherchent un espace pratique et convivial, idéal pour recevoir. Il comprend également trois chambres, dont 2 sur cour, très calme, une salle de bains, une salle d'eau, ainsi que deux WC, dont un séparé. + Une grand cave (6 m²), bien pratique.
L'état intérieur et les parties communes sont en bon état général, la copropriété est entretenue et très bien gérée, sans gros travaux importants à prévoir à court terme (ravalement et autres déja faits!).
L'emplacement offre une vie de quartier agréable, avec des écoles, commerces, restaurants, parcs et jardins accessibles à pied (M° Temple et République à 2 mn,, Square du Temple, le Marais, la rue de Bretagne, etc...) .

Honoraires inclus de 4.03% TTC à la charge de l'acquéreur. Prix hors honoraires 1 240 000 €. Dans une copropriété de 40 lots. Quote-part moyenne du budget prévisionnel 2 648 €/an. Aucune procédure n'est en cours. Classe énergie E, Classe climat B Montant estimé des dépenses annuelles d'énergie pour un usage standard : entre 2750.00 € et 3750.00 € sur les années 2021, 2022 et 2023 (abonnements compris). Les informations sur les risques auxquels ce bien est exposé sont disponibles sur le site Géorisques : georisques.gouv.fr.

Votre conseiller Loft App'Art & Co : Fondateur - Viet Nam HOANG
Carte T CPI75[Coordonnées masquées]00813
RCP 500643218
Voir plus

Référence: VA3621-LOFTAPPART
Bien en copropriété. Nombre de lots : 40. Charges de copropriété : 2648 €.
Honoraires d'agence de 4.03% à la charge de l'acquéreur
Barème des honoraires
DPE
A
B
C
D
E
F
G
GES
A
B
C
D
E
F
G

Prêt immobilier

Vous souhaitez connaître votre capacité d’emprunt et trouver le meilleur crédit immobilier ?
Réaliser une simulation gratuite

Appartement à PARIS-3E
Appartement à PARIS-3E
Appartement à PARIS-3E
Appartement à PARIS-3E
Appartement à PARIS-3E
Appartement à PARIS-3E
Appartement à PARIS-3E
Appartement à PARIS-3E
Appartement à PARIS-3E
Ce site est protégé par reCAPTCHA la Politique de confidentialité et les Conditions d’utilisation de Google s’appliquent.
Obtenir un prêt immobilier au meilleur taux ?

En poursuivant votre navigation sans modifier vos paramètres, vous acceptez l'utilisation de cookies susceptibles de réaliser des statistiques de visite. Cliquez ici pour plus d'informations