Bénéficiez des services de nos partenaires locaux soigneusement sélectionnés
pour vous accompagner dans votre parcours d'achat immobilier

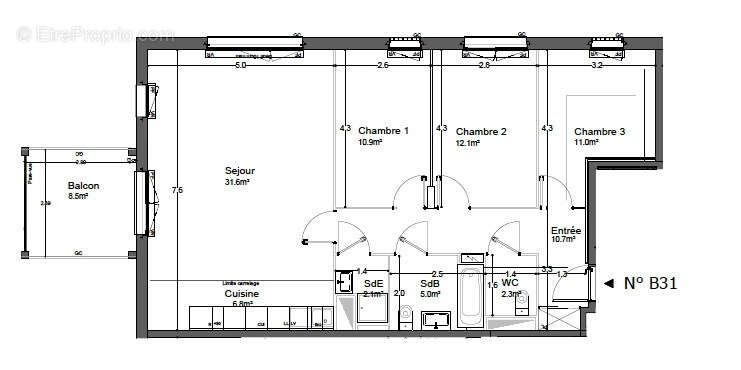
Appartement 4 pièces de 93 m2 au cœur de la verdure

— Neuilly-Sur-Marne 93330 —
347 000 €
93 m²
4 pièces
parkingbalcon/terrasse

Nos partenaires locaux
Découvrez cet appartement familial de 92,5m2 alliant luminosité, espace et élégance contemporaine.
Idéalement situé au milieu de la verdure, il vous séduira par son agencement optimisé, ses prestations soignées:
- Séjour/cuisine ouverte de 38m2, avec une cuisine équipée
- 3 chambres spacieuses (10,9 m2, 12,1 m2 et 11 m2), avec des rangements intégrés
- Salle de bain moderne avec baignoire et WC indépendant, plus une salle d’eau pratique.
- Balcon de 8,5 m2, exposé pour profiter du calme et de la verdure environnante.
Double orientation pour une luminosité naturelle toute la journée.
À seulement quelques minutes des commerces, écoles et transports (RER A, E et Transilien P),
Profitez aussi de la proximité du parc départemental de la Haute-Île, des bords de Marne, et des équipements de l’écoquartier Maison Blanche (crèche, groupes scolaires, maison médicale, commerces).
Ne laissez pas passer cette opportunité !
Frais de notaire réduits Pas de frais d’agence Photos non contractuelles
Voir plus

Barème des honoraires
DPE
A
B
C
D
E
F
G
GES
A
B
C
D
E
F
G

Prêt immobilier

Vous souhaitez connaître votre capacité d’emprunt et trouver le meilleur crédit immobilier ?
Réaliser une simulation gratuite

Appartement à NEUILLY-SUR-MARNE
Appartement à NEUILLY-SUR-MARNE
Appartement à NEUILLY-SUR-MARNE
Appartement à NEUILLY-SUR-MARNE
Appartement à NEUILLY-SUR-MARNE
Ce site est protégé par reCAPTCHA la Politique de confidentialité et les Conditions d’utilisation de Google s’appliquent.
Obtenir un prêt immobilier au meilleur taux ?

En poursuivant votre navigation sans modifier vos paramètres, vous acceptez l'utilisation de cookies susceptibles de réaliser des statistiques de visite. Cliquez ici pour plus d'informations