Duplex 4 pièces 104m² dernier étage

— Le Houlme 76770 —
185 000 €
104 m²
4 pièces
parkingbalcon/terrasse

Vous rêvez d'un bien unique, alliant charme historique et volumes généreux ?

Ne cherchez plus, cet appartement lumineux sur deux étages situé à la limite de Notre-Dame-de-Bondeville est fait pour vous !

Découvrez ce superbe duplex niché aux 2e et derniers étages d'un Château du 19e siècle, entouré d'un parc arboré, clos et sécurisé. Un cadre rare, paisible et verdoyant, à proximité directe de Rouen.
Cet appartement de caractère de 4 pièces offre plus de 104 m² habitables, une cheminée fonctionnelle ainsi qu'une magnifique terrasse de 90 m² exposée sud-ouest.
Idéal pour les amateurs d'espaces lumineux et de biens atypiques. Le stationnement est facilité grâce à deux places privées, complétées par une cave.

L'appartement est disposé comme suit :
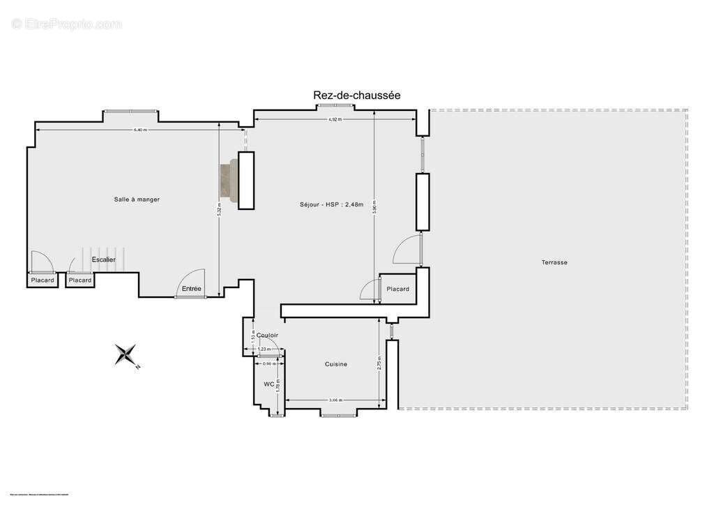
Au REZ-DE-CHAUSSÉE :
• Une entrée/séjour/salle à manger ouverte de plus de 55 m² avec cheminée fonctionnelle
• Une cuisine indépendante
• Un WC séparé
• Une terrasse exposée sud-est d'environ 90 m²
À l'étage :
• 3 chambres lumineuses
• 1 salle d'eau
• 1 salle de bain avec WC

Atouts de ce bien :
Charme d'un château du 19e siècle Terrasse exceptionnelle de 90 m² Parquet & cheminée fonctionnelle Double vitrage Chauffage individuel gaz Environnement verdoyant & sécurisé 2 places de parking Cave Transports proches (Bus F4, TEOR T2, Gare Malaunay-Le Houlme)

Localisation/Accès :
• Bus F4 à proximité immédiate
• TEOR T2 à 15 min à pied
• Gare de Malaunay–Le Houlme à 20 min à pied
• Rouen centre : 20 min en voiture
• Barentin/A150 : 10 min

EXCLUSIVITÉ

« Les informations sur les risques auxquels ce bien est exposé sont disponibles sur le site Géorisques : www.georisques.gouv.fr »

Pour organiser une visite, contactez : Mathieu DESNOUES inscrit au RSAC de ROUEN n° 992 099 739 / Agence Trybe Immobilier / O6.79.42.17.54 / [Coordonnées masquées]
Voir plus

Référence: VA3052
Bien en copropriété. Nombre de lots : 10. Charges de copropriété : 183 €.
Honoraires à la charge du vendeur.
DPE
A
B
C
D
E
F
G
GES
A
B
C
D
E
F
G

Prêt immobilier

Vous souhaitez connaître votre capacité d’emprunt et trouver le meilleur crédit immobilier ?
Réaliser une simulation gratuite

Appartement à LE HOULME
Appartement à LE HOULME
Appartement à LE HOULME
Appartement à LE HOULME
Appartement à LE HOULME
Appartement à LE HOULME
Appartement à LE HOULME
Ce site est protégé par reCAPTCHA la Politique de confidentialité et les Conditions d’utilisation de Google s’appliquent.
Obtenir un prêt immobilier au meilleur taux ?

En poursuivant votre navigation sans modifier vos paramètres, vous acceptez l'utilisation de cookies susceptibles de réaliser des statistiques de visite. Cliquez ici pour plus d'informations