Bénéficiez des services de nos partenaires locaux soigneusement sélectionnés
pour vous accompagner dans votre parcours d'achat immobilier

Appartement 90m² à sete

— Sete 34200 —
760 000 €
90 m²
4 pièces
parkingbalcon/terrasseascenseuraccès handicapé

Nos partenaires locaux
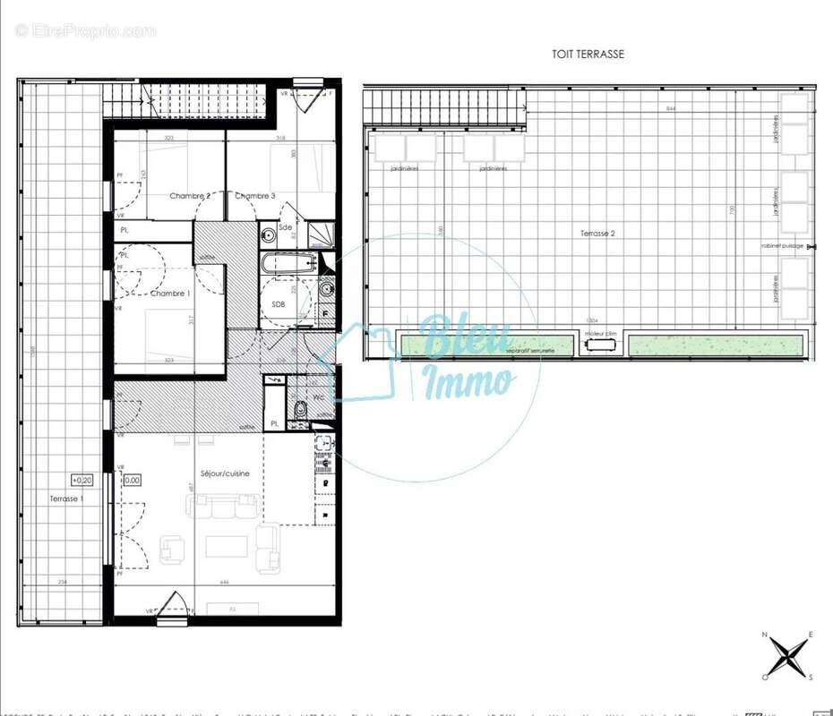
SETE MAGNIFIQUE APPARTEMENT T4 EN DERNIER ETAGE AVEC MAGNIFIQUE VUE.

Environnement résidentiel privilégié.

Sejour de 46m² ouvrant sur terrasse, deux chambres, une suite parentale, un WC séparé. Cet appartement aux prestations haut de gamme vous propose un roof top privatif de près de 90m2 en toit terrasse.

Deux places de parking privative.

Référence: 86479628
DPE
A
B
C
D
E
F
G

Prêt immobilier

Vous souhaitez connaître votre capacité d’emprunt et trouver le meilleur crédit immobilier ?
Réaliser une simulation gratuite

Appartement à SETE
Appartement à SETE
Ce site est protégé par reCAPTCHA la Politique de confidentialité et les Conditions d’utilisation de Google s’appliquent.
Obtenir un prêt immobilier au meilleur taux ?

En poursuivant votre navigation sans modifier vos paramètres, vous acceptez l'utilisation de cookies susceptibles de réaliser des statistiques de visite. Cliquez ici pour plus d'informations