Bénéficiez des services de nos partenaires locaux soigneusement sélectionnés
pour vous accompagner dans votre parcours d'achat immobilier

Maison 147m² à cannes

— Cannes 06400 —
1 060 000 €
147 m² / 365 m²
parkingbalcon/terrassejardin

Nos partenaires locaux
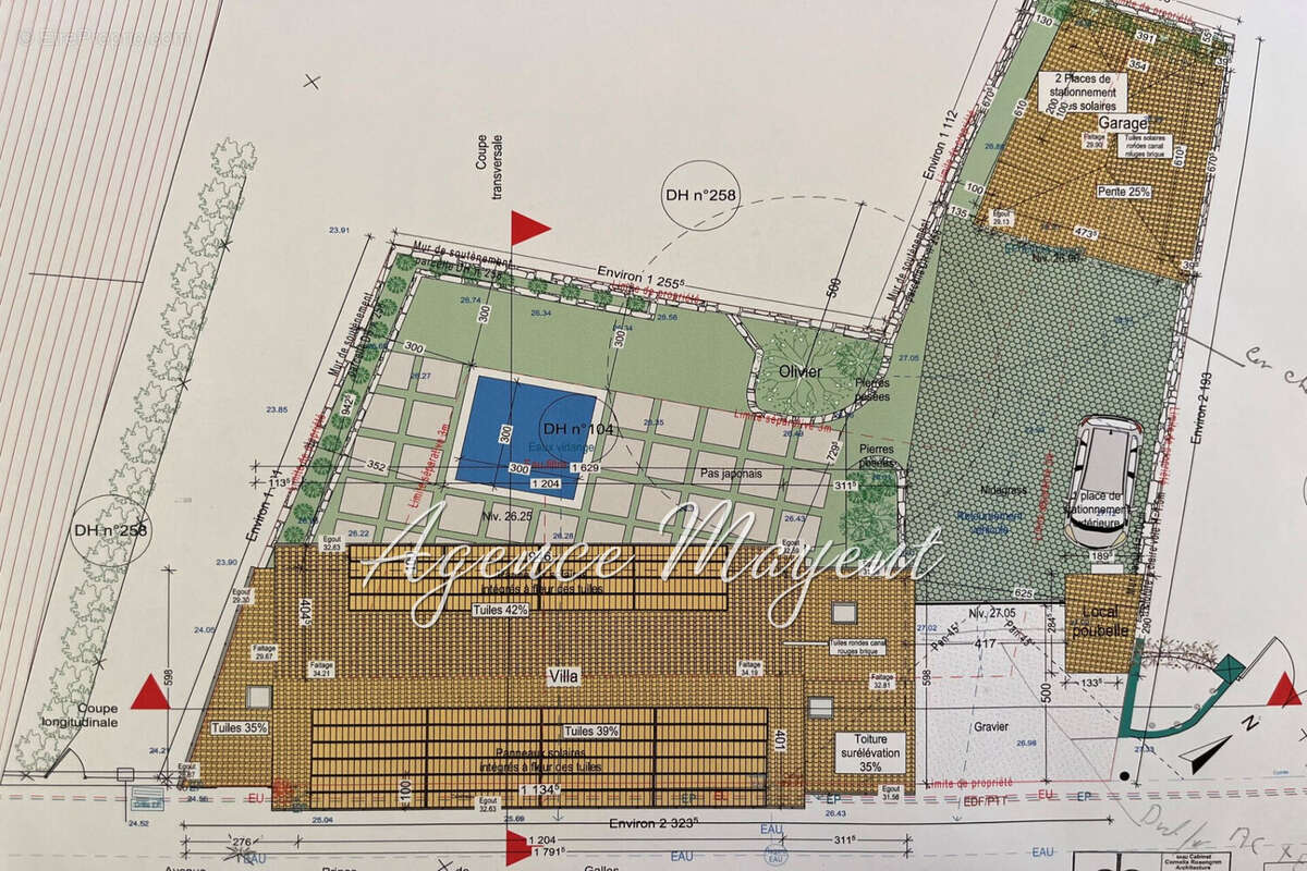
Maison de ville située dans le quartier Montrose, quartier calme et résidentiel à proximité immédiate de toutes les commodités, des écoles et du centre de Cannes.
Vendue avec un permis de construire accepté, cette maison en pierre avec beaucoup de charme nécessite une rénovation complète.
Le projet comprend, au rez-de-chaussée, un bel espace de vie d'environ 65 m² comprenant un salon, une grande cuisine familiale avec salle à manger intégrée.
A l'étage, vous y trouverez trois chambres avec leurs salles de bains.
Le jardin sans aucun vis-à-vis offrira un très bel environnement paysagé avec un bassin de 3m x 3m pour se rafraichir, un grand garage pour deux voitures et des places de parking extérieures.
Voir plus

Référence: 361V54M
Honoraires d'agence de 6% à la charge de l'acquéreur
DPE
A
B
C
D
E
F
G
GES
A
B
C
D
E
F
G

Prêt immobilier

Vous souhaitez connaître votre capacité d’emprunt et trouver le meilleur crédit immobilier ?
Réaliser une simulation gratuite

Maison à CANNES
Maison à CANNES
Maison à CANNES
Maison à CANNES
Maison à CANNES
Maison à CANNES
Ce site est protégé par reCAPTCHA la Politique de confidentialité et les Conditions d’utilisation de Google s’appliquent.
Obtenir un prêt immobilier au meilleur taux ?

En poursuivant votre navigation sans modifier vos paramètres, vous acceptez l'utilisation de cookies susceptibles de réaliser des statistiques de visite. Cliquez ici pour plus d'informations