Maison 91m² à deuil-la-barre

— Deuil-La-Barre 95170 —
349 000 €
91 m² / 30 m²
5 pièces
balcon/terrasse

DEUIL LA BARRE

Proche commerces et écoles à 15 mn à pied de la gare La Barre Ormesson.
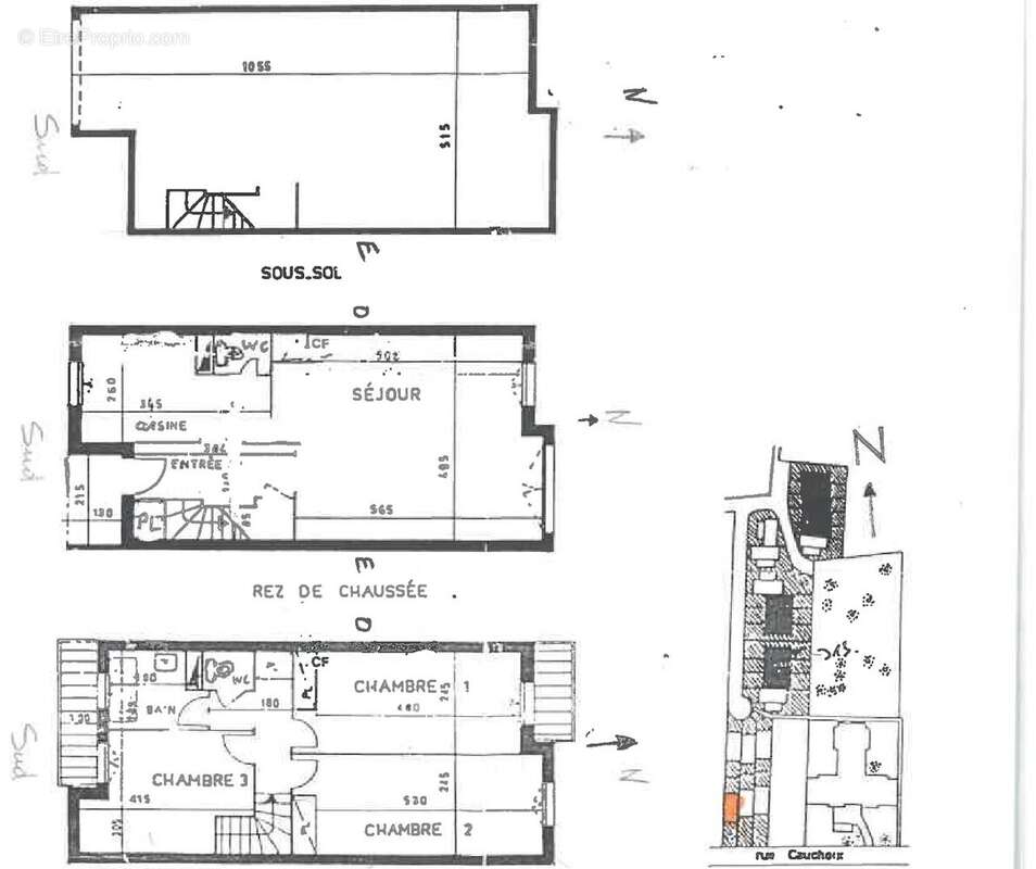
Venez découvrir cette maison en parfait état élevée sur un sous-sol total accessible aux voitures.
Au rez-de-chaussée, nous avons une entrée avec placard, une cuisine équipée, un WC et un séjour de 28.62 m², avec cheminée, donnant sur un petit jardin.
A létage : dégagement avec placard desservant 3 chambres spacieuses (9.87 m² / 12.62 m² et 14.42 m²) avec rangements, donnant sur deux balcons, une salle de bains (douche) et WC.
Cerise sur le gateau : un comble magnifique au niveau supérieur aménageable de 31.33 m² !
Surface loi carrez : 91.77 m²
Surface au sol totale : 139.05 m²
Chauffage éléctrique.
Ensemble des peintures neuves.
Vous n'avez qu'à poservos meubles.
Ne tardez pas pour une visite.



- Montant estimé des dépenses annuelles d'énergie pour un usage standard : Entre 2010 Euros et 2770 Euros par an. Prix moyens des énergies indexés au 1er janvier 2023 (abonnement compris)
Voir plus

Référence: 25325
Bien en copropriété.
Honoraires à la charge du vendeur.
DPE
A
B
C
D
E
F
G
GES
A
B
C
D
E
F
G

Prêt immobilier

Vous souhaitez connaître votre capacité d’emprunt et trouver le meilleur crédit immobilier ?
Réaliser une simulation gratuite

Maison à DEUIL-LA-BARRE
Maison à DEUIL-LA-BARRE
Maison à DEUIL-LA-BARRE
Maison à DEUIL-LA-BARRE
Maison à DEUIL-LA-BARRE
Maison à DEUIL-LA-BARRE
Maison à DEUIL-LA-BARRE
Maison à DEUIL-LA-BARRE
Maison à DEUIL-LA-BARRE
Maison à DEUIL-LA-BARRE
Maison à DEUIL-LA-BARRE
Maison à DEUIL-LA-BARRE
Maison à DEUIL-LA-BARRE
Maison à DEUIL-LA-BARRE
Maison à DEUIL-LA-BARRE
Maison à DEUIL-LA-BARRE
Maison à DEUIL-LA-BARRE
Ce site est protégé par reCAPTCHA la Politique de confidentialité et les Conditions d’utilisation de Google s’appliquent.
Obtenir un prêt immobilier au meilleur taux ?

En poursuivant votre navigation sans modifier vos paramètres, vous acceptez l'utilisation de cookies susceptibles de réaliser des statistiques de visite. Cliquez ici pour plus d'informations