Bénéficiez des services de nos partenaires locaux soigneusement sélectionnés
pour vous accompagner dans votre parcours d'achat immobilier

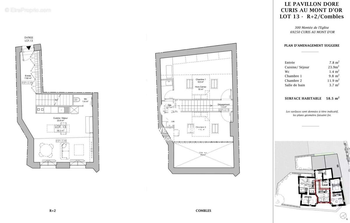
Plateau en duplex de 63,3 m² dans un cadre exceptionnel

— Curis-Au-Mont-D'or 69250 —
202 000 €
63 m²
4 pièces
piscine

Nos partenaires locaux
Coldwell Banker vous propose en exclusivité ce plateau en duplex de 63,3 m², situé au sein d’un ancien domaine de caractère, autrefois maison d’hôtes et aujourd’hui transformé en une copropriété intimiste de seulement 14 logements. L’ensemble se niche au cœur d’un parc arboré d’un hectare, doté d’une piscine réservée aux résidents, offrant un cadre de vie rare, calme et verdoyant, à seulement quelques minutes de Lyon.

Ce plateau, vendu brut, offre la possibilité de réaliser un T3 en duplex selon vos besoins et votre projet. Les volumes permettent d’imaginer une belle pièce de vie avec cuisine ouverte, deux chambres, une salle d’eau et des rangements, tout en conservant le charme et l’authenticité du domaine. Un véritable potentiel pour créer un logement unique et personnalisé, dans un environnement privilégié.

Le bien dispose également d’un extérieur privatif, non attenant au logement, idéal pour profiter de l’environnement naturel et du cadre bucolique du parc.

Les résidents bénéficient d’un accès privilégié aux espaces communs et à la piscine du domaine, cultivant un esprit de convivialité et une qualité de vie très appréciable.

Stationnement disponible en sus.
Voir plus

Référence: 69201
Barème des honoraires
DPE
A
B
C
D
E
F
G

Prêt immobilier

Vous souhaitez connaître votre capacité d’emprunt et trouver le meilleur crédit immobilier ?
Réaliser une simulation gratuite

Appartement à CURIS-AU-MONT-D'OR
Appartement à CURIS-AU-MONT-D'OR
Appartement à CURIS-AU-MONT-D'OR
Appartement à CURIS-AU-MONT-D'OR
Appartement à CURIS-AU-MONT-D'OR
Ce site est protégé par reCAPTCHA la Politique de confidentialité et les Conditions d’utilisation de Google s’appliquent.
Obtenir un prêt immobilier au meilleur taux ?

En poursuivant votre navigation sans modifier vos paramètres, vous acceptez l'utilisation de cookies susceptibles de réaliser des statistiques de visite. Cliquez ici pour plus d'informations