Bénéficiez des services de nos partenaires locaux soigneusement sélectionnés
pour vous accompagner dans votre parcours d'achat immobilier

Charmant duplex 3 pièces - 54m² - paris 12 bercy

— Paris-12e 75012 —
499 000 €
54 m²
3 pièces

Nos partenaires locaux
Bienvenue chez Abriculteurs, l’agence familiale qui s’engage à un service immobilier d’exception. Découvrez une présentation soignée de ce bien : des photos professionnelles, un plan détaillé et une visite virtuelle immersive pour vous projeter dans un cadre unique. Faites confiance à notre expertise pour transformer vos projets immobiliers en réussites remarquables.


Localisation idéale et charme de l'ancien !

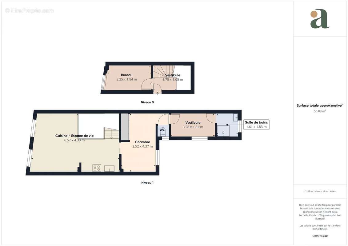
Situé au cœur du quartier dynamique de Bercy, à seulement 5 minutes à pied du métro Cour Saint-Emilion (Ligne 14), ce duplex atypique de 54m² Loi Carrez (58m² au sol) vous séduit par son agencement optimisé et son calme.


Dès l'entrée au rez-de-chaussée, vous accédez à un premier bureau indépendant de 6m², idéal pour le télétravail au calme. À l'étage, l'espace de vie de 25m² se dévoile, baigné de lumière grâce à son exposition Est sans vis-à-vis. Vous appréciez le cachet du parquet en point de Hongrie et profitez d'une cuisine ouverte conviviale pour vos moments de partage.


La partie nuit, orientée Ouest sur une cour au calme absolu, offre une chambre confortable dotée d'une grande penderie intégrée. Une pièce supplémentaire polyvalente, parfaite comme bureau d'appoint ou chambre de bébé, dessert la salle de douche. Des toilettes séparées complètent ce niveau.

Les + du bien :
- Appartement traversant Est-Ouest offrant une clarté exceptionnelle toute la journée
- Calme absolu et aucun vis-à-vis, rare dans le secteur
- Stationnement en libre accès pour les résidents et une cave incluse.

À noter :
- Charges courantes annuelles : 1800€ / an
- Coût annuel du chauffage : 1720€ / an
- Etat du bien : Très bon état, pas de travaux à prévoir
- Le bien est soumis au statut de copropriété
- 25 lots
- Appartement n° 47 Quote part : 58 / 860
- Cave n° 1 : Quote part 1 / 860
- Pas de procédure en cours

Consommation conventionnelle : 417 kWhEP/m2.an (F)
Estimation des émissions : 13 kg CO2/m2.an (C)
Coût de l'énergie min / max : 1720€ - 2360€
Année de référence des prix : 2023

Logement à consommation énergétique excessive. D’ici le 1er janvier 2028, il sera obligatoire d’atteindre a minima le seuil de 330 kWh/m2/ an correspondant à la classe E.

Passage en DPE E possible en isolant le plancher du RDC (7m²) et en installant une porte d’entrée plus performante.

Prix de vente : 499.000 € TTC (Honoraires Abriculteurs à la charge du vendeur).

Ce bien a retenu votre intérêt ? Pour organiser la visite avec nous, rien de plus simple, prenez rendez-vous en ligne au moment qui vous convient le mieux.

Les informations sur les risques auxquels ce bien est exposé sont disponibles sur le site Géorisques : www.georisques.gouv.fr
Ce bien n'est potentiellement pas concerné par un tel risque.

Annonce rédigée sous la responsabilité éditoriale de M. Olivier MÉNART, agent commercial (EI), immatriculé au RSAC de Paris sous le n° 803 300 698, sans détention de fonds, agissant pour le compte de la SARL Abriculteurs immobilier, au capital de 5 000 €, immatriculée sous le SIREN n° 837 704 584, titulaire de la carte professionnelle n° CPI 75[Coordonnées masquées]25 842 délivrée par la CCI de Paris Île-de-France, dont le représentant légal est M. Adrien Piot, ayant son siège social au 12 rue des Halles, 75001 Paris.
Voir plus

Référence: OMVA3201
Barème des honoraires
DPE
A
B
C
D
E
F
G
GES
A
B
C
D
E
F
G

Prêt immobilier

Vous souhaitez connaître votre capacité d’emprunt et trouver le meilleur crédit immobilier ?
Réaliser une simulation gratuite

Appartement à PARIS-12E
Appartement à PARIS-12E
Appartement à PARIS-12E
Appartement à PARIS-12E
Appartement à PARIS-12E
Appartement à PARIS-12E
Appartement à PARIS-12E
Appartement à PARIS-12E
Appartement à PARIS-12E
Appartement à PARIS-12E
Appartement à PARIS-12E
Ce site est protégé par reCAPTCHA la Politique de confidentialité et les Conditions d’utilisation de Google s’appliquent.
Obtenir un prêt immobilier au meilleur taux ?

En poursuivant votre navigation sans modifier vos paramètres, vous acceptez l'utilisation de cookies susceptibles de réaliser des statistiques de visite. Cliquez ici pour plus d'informations