Bénéficiez des services de nos partenaires locaux soigneusement sélectionnés
pour vous accompagner dans votre parcours d'achat immobilier

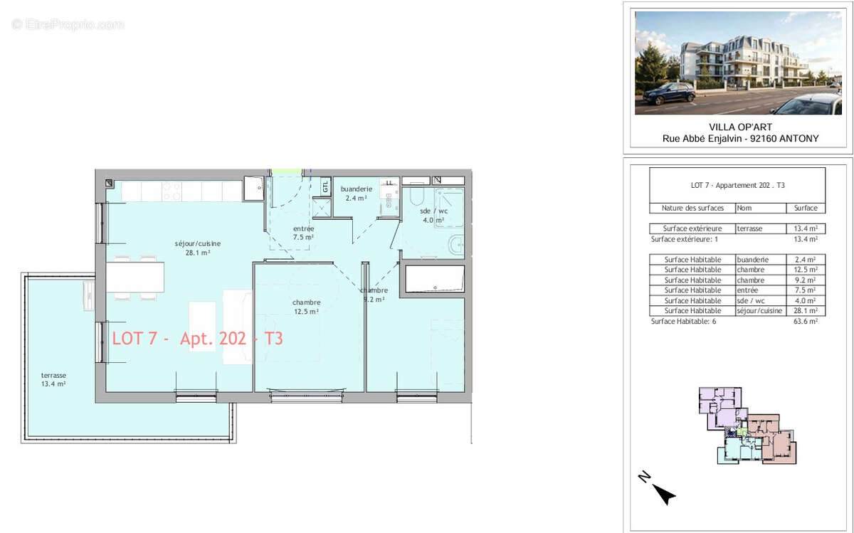
Appartement antony 3 pièce(s) 63.6 m2

— Antony 92160 —
504 078 €
64 m²
3 pièces

Nos partenaires locaux
ANTONY -Centre-ville Idéalement situé en plein coeur d'Antony, au sein d'une belle résidence, cet appartement de 3 pièces d'environ 64 m² offre un cadre de vie confortable et recherché. Il se compose d'une entrée, d'un grand séjour , d'une cuisine ouverte, de deux chambres, ainsi que d'une salle d'eau avec WC et d'un espace buanderie . Vous profiterez également d'une spacieuse terrasse d'environ 14 m², véritable atout pour prolonger vos moments de détente en extérieur. Sa localisation est exceptionnelle : à deux pas du marché, à seulement 7 minutes du RER B Antony Centre, et à proximité immédiate des écoles et du centre culturel Vasarely. Un bien rare sur le secteur. Pour toute information, contactez votre agence au [Coordonnées masquées] ou au [Coordonnées masquées]. Copropriété de 10 lots - dont 10 lots habitation.(Pas de procédure en cours).
Voir plus

Bien en copropriété. Nombre de lots : 10.
Honoraires à la charge du vendeur.

Prêt immobilier

Vous souhaitez connaître votre capacité d’emprunt et trouver le meilleur crédit immobilier ?
Réaliser une simulation gratuite

Appartement à ANTONY
Appartement à ANTONY
Appartement à ANTONY
Ce site est protégé par reCAPTCHA la Politique de confidentialité et les Conditions d’utilisation de Google s’appliquent.
Obtenir un prêt immobilier au meilleur taux ?

En poursuivant votre navigation sans modifier vos paramètres, vous acceptez l'utilisation de cookies susceptibles de réaliser des statistiques de visite. Cliquez ici pour plus d'informations