Bénéficiez des services de nos partenaires locaux soigneusement sélectionnés
pour vous accompagner dans votre parcours d'achat immobilier

Dernier etage

— L'union 31240 —
375 000 €
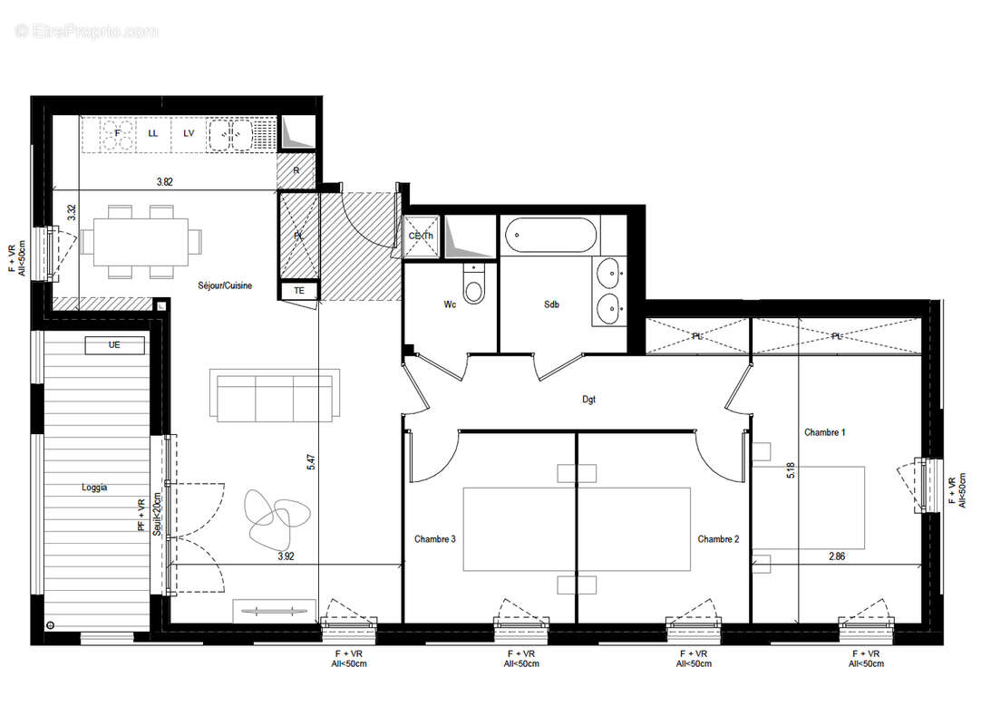
88 m²
4 pièces
parkingbalcon/terrasseascenseur

Nos partenaires locaux
L'Union Centre Au 3ème et dernier étage on vous propose ici un appartement fonctionnel en plein coeur de l'Union. Composé d'un séjour cuisine de 38,15m2 exposé sud-ouest sur balcon de 9,20m2, 3 chambres de 14,80, 9,35 et 9,35m2, une salle de bain et un wc indépendant. 2 places de parking en sous-sol Prestations soignées : isolation renforcée, PAC individuelle, ballon thermodynamique, carrelage 45*45, parquet stratifié dans les chambres, volets roulants électriques, peinture lisse ..... L'appartement s'implante sur un site remarquable face à l'Église Saint-Jean-Baptiste. La ville entre dans une nouvelle phase de son histoire en métamorphosant son coeur de ville et en donnant naissance à un nouveau lieu de vie. Privilège rare, cette parenthèse urbaine s'épanouit tout en douceur dans le calme d'un aménagement paysager intérieur conçu comme « une balade dans les bois » mêlant lieux de vie et d'échanges. Ce parcours propose de déambuler à travers différentes ambiances largement arborées pour créer des îlots de fraîcheur : les fourrés, la lisière, le bosquet, la clairière. La promenade se termine par une forêt-jardin, plantée d'arbres fruitiers et de massifs de petites baies à savourer sans modération par les résidents. BIEN NON SOUMIS AU DPE Pour tout renseignement : Féänor MAMEO [Coordonnées masquées]
Voir plus

Référence: CLU-C2 301
Honoraires à la charge du vendeur.

Prêt immobilier

Vous souhaitez connaître votre capacité d’emprunt et trouver le meilleur crédit immobilier ?
Réaliser une simulation gratuite

Appartement à L'UNION
Appartement à L'UNION
Appartement à L'UNION
Appartement à L'UNION
Appartement à L'UNION
Ce site est protégé par reCAPTCHA la Politique de confidentialité et les Conditions d’utilisation de Google s’appliquent.
Obtenir un prêt immobilier au meilleur taux ?

En poursuivant votre navigation sans modifier vos paramètres, vous acceptez l'utilisation de cookies susceptibles de réaliser des statistiques de visite. Cliquez ici pour plus d'informations