Appartement 70m² à clermont-ferrand

— Clermont-Ferrand 63100 —
238 000 €
70 m²
3 pièces
parkingbalcon/terrasseascenseur

Iad France - Cyrille Figureau ([Coordonnées masquées]) vous propose : Appartement T3 avec balcon à Clermont-Ferrand.

Au cOEur du quartier Champfleuri à Clermont-Ferrand, la résidence Garden City - Inten'City, vous offre un cadre de vie alliant nature, modernité et confort. Nichée dans un environnement verdoyant, à proximité du Parc Montjuzet, des commerces, écoles et transports, cette adresse unique vous permet de profiter du calme tout en restant proche du centre-ville.

Un appartement raffiné :
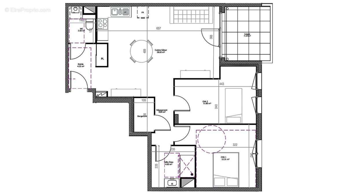
Situé au 1 er étage, cet appartement T3 de 70 m² environ habitables se prolonge par un balcon de 7 m² environ.

- Séjour / cuisine de 29 m² environ.
- Deux chambres confortables.
- Salle d'eau et WC séparé.
- Annexes incluses : 1 box.

De belles prestations :
- Résidence conforme à la RT 2012, gage de performance énergétique.
- Chauffage individuel au gaz.
- Volets roulants motorisés.
- Résidence sécurisée avec ascenseur, visiophone et stationnements en sous-sol.

L'art de vivre à Clermont-Ferrand :
- Environnement naturel préservé à deux pas du Parc Montjuzet.
- Écoles, commerces et tramway accessibles à pied.
- Gare SNCF à 5 min en voiture.
- Proximité du centre-ville et de la place de Jaude (10 min à vélo).

Profitez également d'un bien assorti de la garantie constructeur et de frais de notaire réduits pour allier sécurité et rentabilité.

N'hésitez pas à me contacter pour plus d'informations ou pour un accompagnement sur mesure.

Honoraires d'agence à la charge du vendeur. Bien non soumis au DPE. Les informations sur les risques auxquels ce bien est exposé sont disponibles sur le site Géorisques : www.georisques.gouv.fr. La présente annonce immobilière a été rédigée sous la responsabilité éditoriale de M. Cyrille Figureau EI (ID 76688), mandataire indépendant en immobilier (sans détention de fonds), agent commercial de la SAS I@D France immatriculé au RSAC de Clermont -Ferrand sous le numéro 521703322, titulaire de la carte de démarchage immobilier pour le compte de la société I@D France SAS.
Retrouvez tous nos biens sur notre site internet. www.iadfrance.fr.
Informations LOI ALUR :
Honoraires charge vendeur. (gedeon_6727_31986311)
Voir plus

Référence: 1669315-2
Honoraires à la charge du vendeur.

Prêt immobilier

Vous souhaitez connaître votre capacité d’emprunt et trouver le meilleur crédit immobilier ?
Réaliser une simulation gratuite

Photo 1 - Appartement à CLERMONT-FERRAND
Photo 1
Photo 2 - Appartement à CLERMONT-FERRAND
Photo 2
Photo 3 - Appartement à CLERMONT-FERRAND
Photo 3
Photo 4 - Appartement à CLERMONT-FERRAND
Photo 4
Photo 5 - Appartement à CLERMONT-FERRAND
Photo 5
Photo 6 - Appartement à CLERMONT-FERRAND
Photo 6
Ce site est protégé par reCAPTCHA la Politique de confidentialité et les Conditions d’utilisation de Google s’appliquent.
Obtenir un prêt immobilier au meilleur taux ?

En poursuivant votre navigation sans modifier vos paramètres, vous acceptez l'utilisation de cookies susceptibles de réaliser des statistiques de visite. Cliquez ici pour plus d'informations