Appartement 48m² à lyon-9e

— Lyon-9e 69009 —
175 000 €
48 m²
2 pièces

Iad France - Fabien Torrecillas vous propose : T2 - LUMINEUX - VUE SAÔNE - CHARME DE L'ANCIEN - TRAVAUX À PRÉVOIR

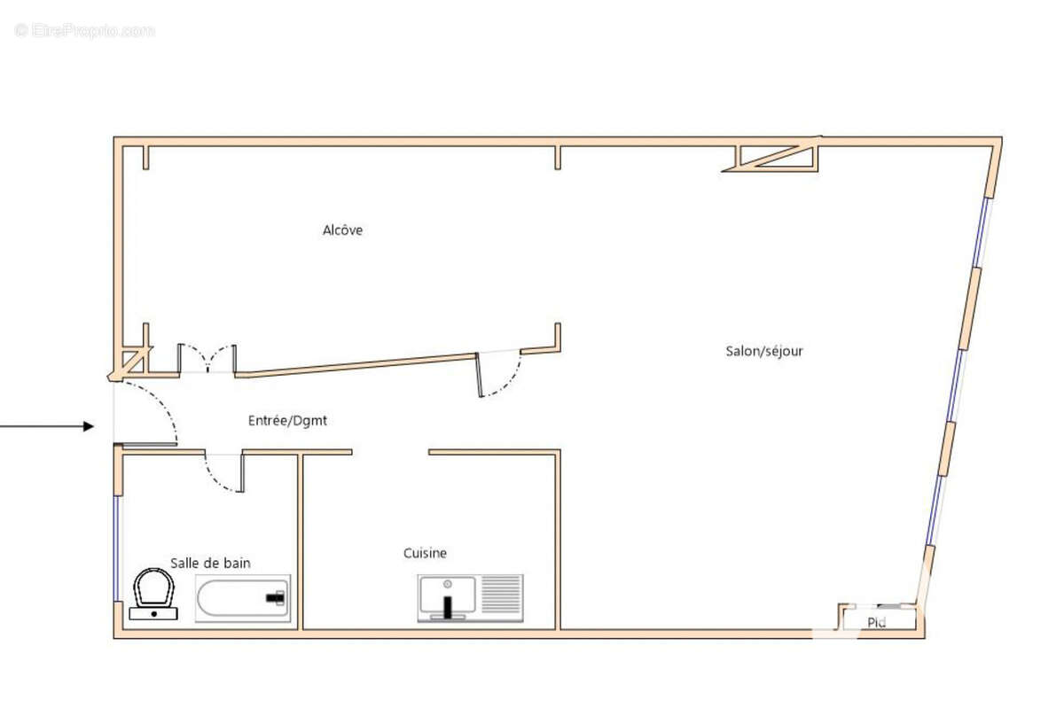
Sur le quai Hippolyte Jaÿr, au cOEur du 9e arrondissement, découvrez ce T2 de 48 m² situé au 5e étage sans ascenseur d'une petite copropriété de 1900.
À moins de 5 minutes à pied du métro D (Valmy) et à proximité immédiate des commerces, universités et de toutes les commodités du quotidien, l'appartement bénéficie d'un emplacement idéal pour vivre ou investir.

Cet appartement possède tout le charme de l'ancien. Cheminée ancienne, belle hauteur sous plafond et parquet massif chêne offrent une atmosphère chaleureuse et authentique. La pièce de vie, lumineuse et bien agencée, se compose d'un salon de 23 m² et d'une cuisine ouverte équipée.
En alcôve, la chambre propose un bel espace de 9,5 m² créant un véritable espace nuit qui peut être fermé.
La salle de bain avec WC est spacieuse et accueille un emplacement pour machine à laver.
Le bien est vendu avec une cave et deux greniers.

Des travaux seront à prévoir pour remettre l'ensemble au goût du jour (électricité, cuisine, salle de bain)

Côté confort : huisseries double vitrage et radiateurs électriques pour un DPE classé D, gage d'efficacité énergétique et de confort thermique. Un bien rare et plein de charme parfait pour un premier achat, un investissement locatif ou un pied-à-terre lyonnais.

Contactez-moi rapidement pour une visite !

La presente annonce immobiliere vise 1 lot situé dans une copropriété de 13 lots au total et ne faisant l'objet d'aucune procédure en cours citée à l'article L. 721-1 du code de la construction et de l'habitation. Montant moyen mensuel de charges déclaré par le vendeur : 53.33¤ par mois (soit 640 ¤ annuel). Honoraires d'agence à la charge du vendeur.
Information d'affichage énergétique sur ce bien : classe ENERGIE D indice 187 et classe CLIMAT A indice 5. Les informations sur les risques auxquels ce bien est exposé, y compris l'obligation légale de débroussaillement, sont disponibles sur le site Géorisques : http://www.georisques.gouv.fr.
La présente annonce immobilière a été rédigée sous la responsabilité éditoriale de M Fabien Torrecillas mandataire indépendant en immobilier (sans détention de fonds), agent commercial de la SAS I@D France immatriculé au RSAC de LYON sous le numéro 978188571, titulaire de la carte de démarchage immobilier pour le compte de la société I@D France SAS.
Informations LOI ALUR :
Soumis au régime de copropriété.
Nombre de lots : 13.
Quote part annuelle(moyenne) : 640 euros.
Honoraires charge vendeur. (gedeon_6727_32241247)
Voir plus

Référence: 1896385
Bien en copropriété. Nombre de lots : 13. Charges de copropriété : 640 €.
Honoraires à la charge du vendeur.
DPE
A
B
C
D
E
F
G
GES
A
B
C
D
E
F
G

Prêt immobilier

Vous souhaitez connaître votre capacité d’emprunt et trouver le meilleur crédit immobilier ?
Réaliser une simulation gratuite

Photo 1 - Appartement à LYON-9E
Photo 1
Photo 2 - Appartement à LYON-9E
Photo 2
Photo 3 - Appartement à LYON-9E
Photo 3
Photo 4 - Appartement à LYON-9E
Photo 4
Photo 5 - Appartement à LYON-9E
Photo 5
Photo 6 - Appartement à LYON-9E
Photo 6
Photo 7 - Appartement à LYON-9E
Photo 7
Photo 8 - Appartement à LYON-9E
Photo 8
Photo 9 - Appartement à LYON-9E
Photo 9
Ce site est protégé par reCAPTCHA la Politique de confidentialité et les Conditions d’utilisation de Google s’appliquent.
Obtenir un prêt immobilier au meilleur taux ?

En poursuivant votre navigation sans modifier vos paramètres, vous acceptez l'utilisation de cookies susceptibles de réaliser des statistiques de visite. Cliquez ici pour plus d'informations