Pas de terrain à Saint-Mayeux pour le moment. Découvrez dès maintenant les terrains dans le département Côtes-d'Armor.

Appartement 4 pièces double exposition - loggia - parking en sous-sol

— Clichy 92110 —
502 000 €
74 m²
4 pièces
ascenseur

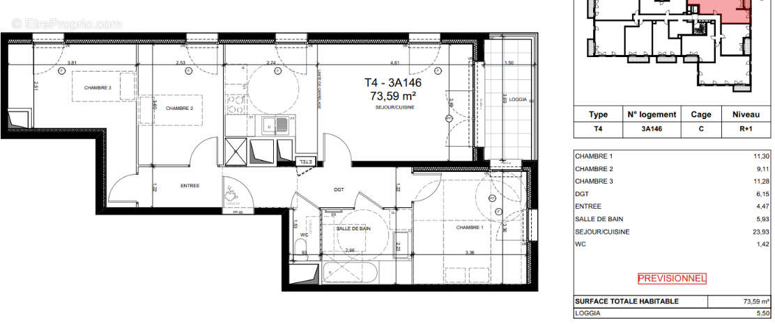
Situé au 1er étage d'une résidence de standing, ce bel appartement de 73.59m² bénéficie d'une double exposition SE et NE, assurant une luminosité optimale tout au long de la journée. Il se compose d'une entrée desservant un séjour avec cuisine ouverte, prolongé par une agréable loggia de 5.5m² m² orienté sud-est. 3 chambres, une salle de bain équipée et des WC séparés. Un emplacement de stationnement en sous-sol (obligatoire) vient compléter ce bien, Un petit budget idéal pour une première acquisition. La résidence : Résidence à l'architecture contemporaine Conforme à la réglementation environnementale RE 2020 Accessibilité PMR Isolation thermique et phonique renforcée Faibles charges de copropriété Une situation idéale aux portes du 17e et proche du quartier des Batignolles A Proximité : métro 14 et RER C à 3 min** à pied, lignes de bus Une vie de quartier : commerces en pied d'immeuble, cheminements piétons et places conviviales Lignes de bus 138, 174, 274 au pied de la résidence Métro ligne 13 - Mairie de Clichy - à 15 min** à pied Prix et conditions : 519 000 euros TTC parking inclus Prix hors parking : 502 000 euros TTC Prix 2 places de parking : 17 000 euros TTC Accompagnement complet jusqu'à la remise des clefs Un expert dédié pour votre résidence principale ou votre investissement locatif Contact dédié : Gabriel de Araujo *sous conditions d'éligibilité à découvrir auprès de votre conseiller ** dans la limite des stocks disponibles, photos non contractuelles
Voir plus

Référence: 23353
Barème des honoraires

Prêt immobilier

Vous souhaitez connaître votre capacité d’emprunt et trouver le meilleur crédit immobilier ?
Réaliser une simulation gratuite

Appartement à CLICHY
Appartement à CLICHY
Appartement à CLICHY
Ce site est protégé par reCAPTCHA la Politique de confidentialité et les Conditions d’utilisation de Google s’appliquent.
Obtenir un prêt immobilier au meilleur taux ?

En poursuivant votre navigation sans modifier vos paramètres, vous acceptez l'utilisation de cookies susceptibles de réaliser des statistiques de visite. Cliquez ici pour plus d'informations