Bénéficiez des services de nos partenaires locaux soigneusement sélectionnés
pour vous accompagner dans votre parcours d'achat immobilier

Paris 17ème - quartier ternes - palais des congrès - grand 3 pièces

— Paris-17e 75017 —
765 000 €
83 m²
3 pièces
ascenseur

Nos partenaires locaux
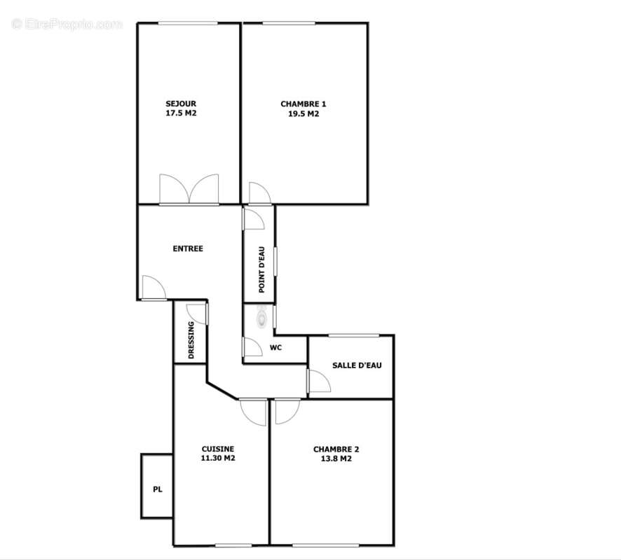
Au coeur d'un secteur recherché, dans une rue particulièrement calme proche des commerces et des commerces du quartier de l'avenue des Ternes, découvrez ce grand 3 pièces de 83 m² à rénover. Situé au 1er étage avec ascenseur d'un très bel immeuble ancien de caractère, il se compose aujourd'hui d'une entrée, d'un salon exposé sud-ouest, d'une cuisine indépendante, de 2 chambres, d'une salle d'eau, de wc séparés ainsi que d'un dressing. Avec son plan modulable et tout le charme de l'ancien, ce bien offre un fort potentiel d'aménagement: possibilité de créer un double salon de 37 m² avec cuisine ouverte et 2 belles chambres. Une adresse au calme et un beau projet de rénovation pour façonner un appartement à votre image. Honoraires de 5% TTC à charge acquéreur - DPE: E - www.imax.fr Les informations sur les risques auxquels ce bien est exposé sont disponibles sur le site Géorisques : www.georisques.gouv.fr (5.00 % honoraires TTC à la charge de l'acquéreur.) Copropriété de 80 lots (Pas de procédure en cours). Charges annuelles : 1666 euros.
Voir plus

Bien en copropriété. Nombre de lots : 80. Charges de copropriété : 1666 €.
Honoraires d'agence de 5% à la charge de l'acquéreur
Barème des honoraires
DPE
A
B
C
D
E
F
G
GES
A
B
C
D
E
F
G

Prêt immobilier

Vous souhaitez connaître votre capacité d’emprunt et trouver le meilleur crédit immobilier ?
Réaliser une simulation gratuite

Appartement à PARIS-17E
Appartement à PARIS-17E
Appartement à PARIS-17E
Appartement à PARIS-17E
Appartement à PARIS-17E
Ce site est protégé par reCAPTCHA la Politique de confidentialité et les Conditions d’utilisation de Google s’appliquent.
Obtenir un prêt immobilier au meilleur taux ?

En poursuivant votre navigation sans modifier vos paramètres, vous acceptez l'utilisation de cookies susceptibles de réaliser des statistiques de visite. Cliquez ici pour plus d'informations