Bénéficiez des services de nos partenaires locaux soigneusement sélectionnés
pour vous accompagner dans votre parcours d'achat immobilier

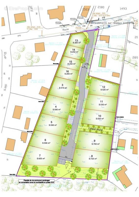
Terrain viabilisé à bâtir, aux portes de mimizan, à quelques minutes des plages

— Pontenx-Les-Forges 40200 —
96 000 €
594 m²

Nos partenaires locaux
À quelques minutes de la commune de Mimizan et des plages océanes, découvrez ce magnifique terrain à bâtir sur la commune de Pontenx-Les-Forges. Ce terrain est vendu viabilisé en eaux et éléctricité et compose l'un des 14 lots d'un petit lotissement intimiste situé à deux pas du coeur du village. Prêt à bâtir, ce terrain plat saura parfaitement répondre à votre projet de vie grace à sa surface plancher autorisée de 250m2.

Référence: 350
Honoraires à la charge du vendeur.
Barème des honoraires

Prêt immobilier

Vous souhaitez connaître votre capacité d’emprunt et trouver le meilleur crédit immobilier ?
Réaliser une simulation gratuite

Terrain à PONTENX-LES-FORGES
Terrain à PONTENX-LES-FORGES
Terrain à PONTENX-LES-FORGES
Terrain à PONTENX-LES-FORGES
Ce site est protégé par reCAPTCHA la Politique de confidentialité et les Conditions d’utilisation de Google s’appliquent.
Obtenir un prêt immobilier au meilleur taux ?

En poursuivant votre navigation sans modifier vos paramètres, vous acceptez l'utilisation de cookies susceptibles de réaliser des statistiques de visite. Cliquez ici pour plus d'informations