Bénéficiez des services de nos partenaires locaux soigneusement sélectionnés
pour vous accompagner dans votre parcours d'achat immobilier

Caen memorial appartement a vendre loue avec garage et cave

— Caen 14000 —
135 800 €
48 m²
2 pièces
parkingbalcon/terrasse

Nos partenaires locaux
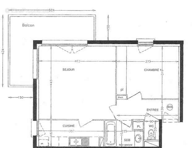
EN EXCLUSIVITE - CAEN NORD, Quartier Mémorial Résidence Les villas de Bellevue, un appartement à vendre loué de 2 pièces principales de 47.73m2 comprenant une entrée, un séjour donnant sur un grand balcon en angle, une cuisine indépendante, une chambre avec un grand placard, une salle de douches et un WC indépendant.
Un garage et une cave en sous-sol complètent ce bien.
Appartement actuellement loué 590€ hc.
Consommation d'énergie : D (186kwh/an/m2), Gaz à effet de serre : D.

Montant estimé des dépenses annuelles d'énergie: entre 740€ et 1040€. Estimation réalisée à partir des prix énergétiques de référence des années 2021.
Quote part annuelle de charges exercice 01/01/2024 au 31/12/2024: 1 311.57€

Prix du bien : 135 800€, honoraires à la charge du vendeur.
La visite virtuelle est disponible sur demande.
Les informations sur les risques auxquels ce bien est exposé sont disponibles sur le site georisques.gouv.fr.
Cabinet QUESNEE [Coordonnées masquées]/[Coordonnées masquées]
Voir plus

Référence: 605
Bien en copropriété. Nombre de lots : 118. Charges de copropriété : 1311 €.
Honoraires à la charge du vendeur.
Barème des honoraires
DPE
A
B
C
D
E
F
G
GES
A
B
C
D
E
F
G

Prêt immobilier

Vous souhaitez connaître votre capacité d’emprunt et trouver le meilleur crédit immobilier ?
Réaliser une simulation gratuite

Appartement à CAEN
Appartement à CAEN
Appartement à CAEN
Appartement à CAEN
Appartement à CAEN
Appartement à CAEN
Appartement à CAEN
Ce site est protégé par reCAPTCHA la Politique de confidentialité et les Conditions d’utilisation de Google s’appliquent.
Obtenir un prêt immobilier au meilleur taux ?

En poursuivant votre navigation sans modifier vos paramètres, vous acceptez l'utilisation de cookies susceptibles de réaliser des statistiques de visite. Cliquez ici pour plus d'informations