Bénéficiez des services de nos partenaires locaux soigneusement sélectionnés
pour vous accompagner dans votre parcours d'achat immobilier

Deux maisons de 55m2 louées / investisseurs

— Montendre 17130 —
230 000 €
110 m² / 316 m²
7 pièces

Nos partenaires locaux
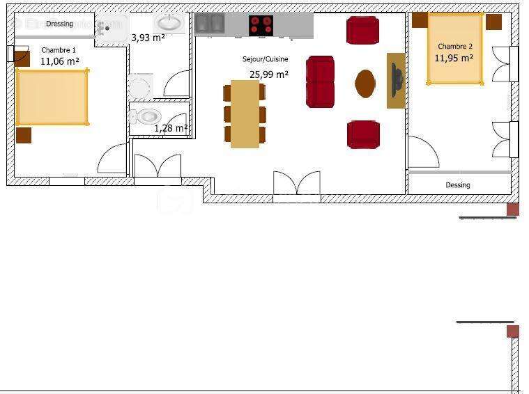
Situé au cœur de Montendre, 2 maisons de plain-pied de 55 m² chacune entièrement rénovées.
Elles ont bénéficié de l'isolation par l'extérieur et ont chacune une pompe à chaleur.

Chaque maison a son propre jardin, 2 chambres, un salon séjour, une cuisine et une salle d'eau.

les plus de ces maisons :
locataires en place moyennant 1413€50 hors charges par mois
pas de travaux à effectuer
bonne situation et places de parking

Cette annonce référence 308035 vous est présentée par votre agent commercial BSK Immobilier ANNE-SOPHIE SALLAT DELUME (EI) immatriculé au RSAC de CHARTRES (28000) sous le numéro 9481[Coordonnées masquées].

Prix du bien : 230 000,00 €
Les honoraires d'agence sont à la charge du vendeur.

A propos des performances énergétiques :
Date de réalisation du diagnostic énergétique : 06/03/2025
Score DPE : 202 kWhEP/m²/an
Score GES : 6 kgepCO2/m²/an
Montant estimé des dépenses annuelles d'énergie pour un usage standard : entre 820.00 € et 1169.99 € par an. Prix moyens des énergies indexés sur l'année 2022 (abonnements compris).

Les informations sur les risques auxquels ce bien est exposé sont disponibles sur le site Géorisques : www.georisques.gouv.fr
Voir plus

Référence: 308035
Honoraires à la charge du vendeur.
DPE
A
B
C
D
E
F
G
GES
A
B
C
D
E
F
G

Prêt immobilier

Vous souhaitez connaître votre capacité d’emprunt et trouver le meilleur crédit immobilier ?
Réaliser une simulation gratuite

Maison à MONTENDRE
Maison à MONTENDRE
Maison à MONTENDRE
Maison à MONTENDRE
Maison à MONTENDRE
Maison à MONTENDRE
Maison à MONTENDRE
Maison à MONTENDRE
Maison à MONTENDRE
Ce site est protégé par reCAPTCHA la Politique de confidentialité et les Conditions d’utilisation de Google s’appliquent.
Obtenir un prêt immobilier au meilleur taux ?

En poursuivant votre navigation sans modifier vos paramètres, vous acceptez l'utilisation de cookies susceptibles de réaliser des statistiques de visite. Cliquez ici pour plus d'informations