Bénéficiez des services de nos partenaires locaux soigneusement sélectionnés
pour vous accompagner dans votre parcours d'achat immobilier

Appartement

— Saumur 49400 —
82 000 €
40 m²
2 pièces
balcon/terrasse

Nos partenaires locaux
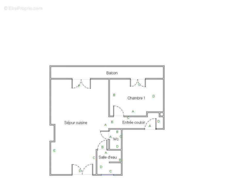
SAUMUR – SECTEUR GARE – Appartement T2 – Jardin privatif

NOUVEAUTÉ & EXCLUSIVITE CHEZ EFFICITY

Description :
Découvrez cet appartement T2 situé à Saumur, dans le secteur très recherché de la gare, à deux pas du nouveau campus universitaire — une zone à forte demande locative.
Le bien est vendu loué, avec un locataire en place (loyer actuel : 492 €), idéal pour un investisseur souhaitant sécuriser un rendement immédiat.
L'appartement dispose d'un jardin privatif, un atout rare, ainsi qu'un balcon et une cave.
Le stationnement est gratuit devant l'immeuble. Quelques légers travaux de rafraîchissement sont à prévoir, laissant la possibilité d'améliorer encore la rentabilité.

Points forts :
- Locataire en place : revenus immédiats
- Jardin privatif (rare en appartement)
- Secteur gare, à deux pas du campus universitaire
- Forte demande locative

Détails du logement :
- Entrée avec placards
- Pièce de vie ouvrant sur balcon
- Cuisine aménagée
- Chambre avec rangements
- Salle d'eau
- WC séparé
- Jardin privatif
- Cave privative
- Chauffage électrique

Commodités :
Gare SNCF à proximité immédiate, campus universitaire à quelques mètres, commerces, transports, stationnement gratuit, accès rapide centre-ville.

À visiter sans tarder !
Intéressé(e) ?

Contactez-moi pour découvrir le bien et obtenir toutes les informations complémentaires.
Thomas Astié – Conseiller immobilier Efficity
Spécialiste en investissement – Suivi personnalisé
Services : estimation gratuite, accompagnement dans vos projets, après-vente et gestion locative.
Les informations sur les risques auxquels ce bien est exposé sont disponibles sur le site Georisque : georisques. gouv. fr
Thomas Astié - EI - est Agent Commercial mandataire en immobilier, immatriculé au Registre Spécial des Agents Commerciaux du Tribunal de Commerce de Angers sous le n°897406021.
Siège social du mandant : effiCity, 48 avenue de Villiers - 75017 PARIS - Société par Actions Simplifiée, société au capital de 132 373,05 euros, immatriculée au RCS Paris 497 617 746 et titulaire de la Carte professionnelle CPI 75[Coordonnées masquées]02 025 - CCI Paris IDF - Caisse de Garantie : GALIAN Assurances 89 rue de la Boétie 75008 Paris
Voir plus

Référence: 200011
Bien en copropriété. Nombre de lots : 10. Charges de copropriété : 50 €.
Honoraires à la charge du vendeur.
Barème des honoraires
DPE
A
B
C
D
E
F
G
GES
A
B
C
D
E
F
G

Prêt immobilier

Vous souhaitez connaître votre capacité d’emprunt et trouver le meilleur crédit immobilier ?
Réaliser une simulation gratuite

Appartement à SAUMUR
Appartement à SAUMUR
Appartement à SAUMUR
Appartement à SAUMUR
Appartement à SAUMUR
Appartement à SAUMUR
Appartement à SAUMUR
Appartement à SAUMUR
Appartement à SAUMUR
Appartement à SAUMUR
Appartement à SAUMUR
Appartement à SAUMUR
Ce site est protégé par reCAPTCHA la Politique de confidentialité et les Conditions d’utilisation de Google s’appliquent.
Obtenir un prêt immobilier au meilleur taux ?

En poursuivant votre navigation sans modifier vos paramètres, vous acceptez l'utilisation de cookies susceptibles de réaliser des statistiques de visite. Cliquez ici pour plus d'informations