Bénéficiez des services de nos partenaires locaux soigneusement sélectionnés
pour vous accompagner dans votre parcours d'achat immobilier

Paris 17 plaine monceau hotel particulier r+3 avec ascenseur 290 m2 habitables + annexes jardin & balc

— Paris-17e 75017 —
5 000 000 €
380 m²
11 pièces

Nos partenaires locaux
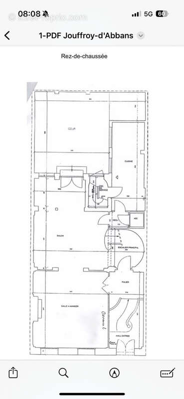
PARIS 17 - HOTEL PARTICULIER EZRA HOME vous propose à la vente un HOTEL PARTICULIER de 290 m2 Carrez, à proximité immédiate du Lycée Carnot et du Parc Monceau.  fin XIXème, R+3 avec ascenseur, ouvrant sur une cour jardin plein sud de 38 m2 et agrémentée de larges balcons avec une trés belle Belle hauteur sous plafond, plan parfait et prestations rares. Au rez de chaussée surélevé, une entrée, un grand salon sur rue, un petit salon donnant sur la cour jardin intérieure, une cuisine entièrement tournée vers la cour jardin, et une salle à manger. Au 1er étage, une suite parentale avec dressing, salle de bain, douche et wc, ainsi qu’une seconde chambre avec placards, salle de bain, wc et balcon sur le jardin. Au 2ème étage, un grand bureau sur rue avec une hauteur sous plafond remarquable de 3.90m, une chambre avec salle de bain, dressing, wc et balcon côté jardin. Au 3ème étage, deux chambres supplémentaires avec salle de douche, wc et cuisine, balcon sur jardin. En entre sol, un garage avec rangements, une buanderie dressing, un local technique pour l’ascenseur, un sanitaire avec douche, une chaufferie et une cave à vin.
 
Voir plus

Bien en copropriété. Nombre de lots : 36.
Barème des honoraires

Prêt immobilier

Vous souhaitez connaître votre capacité d’emprunt et trouver le meilleur crédit immobilier ?
Réaliser une simulation gratuite

Autre à PARIS-17E
Autre à PARIS-17E
Autre à PARIS-17E
Autre à PARIS-17E
Autre à PARIS-17E
Autre à PARIS-17E
Autre à PARIS-17E
Autre à PARIS-17E
Autre à PARIS-17E
Autre à PARIS-17E
Autre à PARIS-17E
Autre à PARIS-17E
Autre à PARIS-17E
Autre à PARIS-17E
Autre à PARIS-17E
Ce site est protégé par reCAPTCHA la Politique de confidentialité et les Conditions d’utilisation de Google s’appliquent.
Obtenir un prêt immobilier au meilleur taux ?

En poursuivant votre navigation sans modifier vos paramètres, vous acceptez l'utilisation de cookies susceptibles de réaliser des statistiques de visite. Cliquez ici pour plus d'informations