Bénéficiez des services de nos partenaires locaux soigneusement sélectionnés
pour vous accompagner dans votre parcours d'achat immobilier

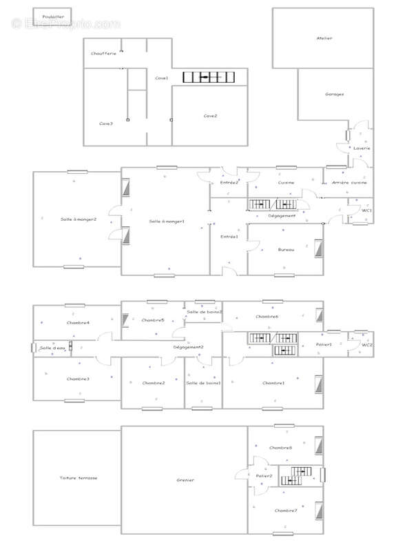
Lievin - maison de maître - 366m2 - 9 chambres (possibilité 11) - 2671m2 de terrain clos et arboré

— Lievin 62800 —
587 000 €
366 m² / 2 671 m²
11 pièces
parkingbalcon/terrassejardin

Nos partenaires locaux
Achat immobilier d'une maison de maître de type T11 bénéficiant d'une jolie terrasse à vivre agréable et ensoleillée à Liévin. Cette habitation répondra parfaitement aux attentes d'une famille avec plusieurs enfants. Elle possède un espace cuisine, 9 chambres et un coin salon de 80m2. Aspect très appréciable au niveau de l'agencement, les 3 salles de bain constituent un point de confort important. Avec autant de chambres, l'une d'elles peut être utilisée comme bibliothèque. Sa surface habitable est d'approximativement 366m2. Le domicile vous fait profiter d'une cave. Le double vitrage garantit la tranquillité des occupants. Le logement s'accompagne d'une alarme assurant la sécurité. La propriété vous propose un jardin de 2671m2 et une terrasse occupant 50m2. Le grand terrain de 2671m2 évite à la maison de souffrir de la proximité avec le voisinage. Le domicile vous fait profiter d'une aire de parking privative qui vous garantissent un endroit où vous garer et de 3 garages.
Plus de photos et informations sur notre site ou en agence.
Cette annonce vous est proposée par DIEVAL Guillaume - EI - NoRSAC: 422642397 00034, Enregistré à Chambre de commerce et de l'industrie de Lens - Annonce rédigée et publiée par un Agent Mandataire -
Voir plus

Honoraires d'agence de 2.98% à la charge de l'acquéreur
Barème des honoraires
DPE
A
B
C
D
E
F
G
GES
A
B
C
D
E
F
G

Prêt immobilier

Vous souhaitez connaître votre capacité d’emprunt et trouver le meilleur crédit immobilier ?
Réaliser une simulation gratuite

Maison à LIEVIN
Maison à LIEVIN
Maison à LIEVIN
Maison à LIEVIN
Maison à LIEVIN
Maison à LIEVIN
Maison à LIEVIN
Maison à LIEVIN
Maison à LIEVIN
Maison à LIEVIN
Maison à LIEVIN
Maison à LIEVIN
Maison à LIEVIN
Maison à LIEVIN
Maison à LIEVIN
Maison à LIEVIN
Maison à LIEVIN
Maison à LIEVIN
Maison à LIEVIN
Maison à LIEVIN
Maison à LIEVIN
Maison à LIEVIN
Maison à LIEVIN
Maison à LIEVIN
Maison à LIEVIN
Maison à LIEVIN
Maison à LIEVIN
Maison à LIEVIN
Maison à LIEVIN
Maison à LIEVIN
Maison à LIEVIN
Maison à LIEVIN
Maison à LIEVIN
Maison à LIEVIN
Maison à LIEVIN
Maison à LIEVIN
Maison à LIEVIN
Maison à LIEVIN
Maison à LIEVIN
Maison à LIEVIN
Maison à LIEVIN
Maison à LIEVIN
Maison à LIEVIN
Ce site est protégé par reCAPTCHA la Politique de confidentialité et les Conditions d’utilisation de Google s’appliquent.
Obtenir un prêt immobilier au meilleur taux ?

En poursuivant votre navigation sans modifier vos paramètres, vous acceptez l'utilisation de cookies susceptibles de réaliser des statistiques de visite. Cliquez ici pour plus d'informations