Appartement 67m² à lyon-1e

— Lyon-1e 69001 —
283 500 €
67 m²
3 pièces
ascenseur

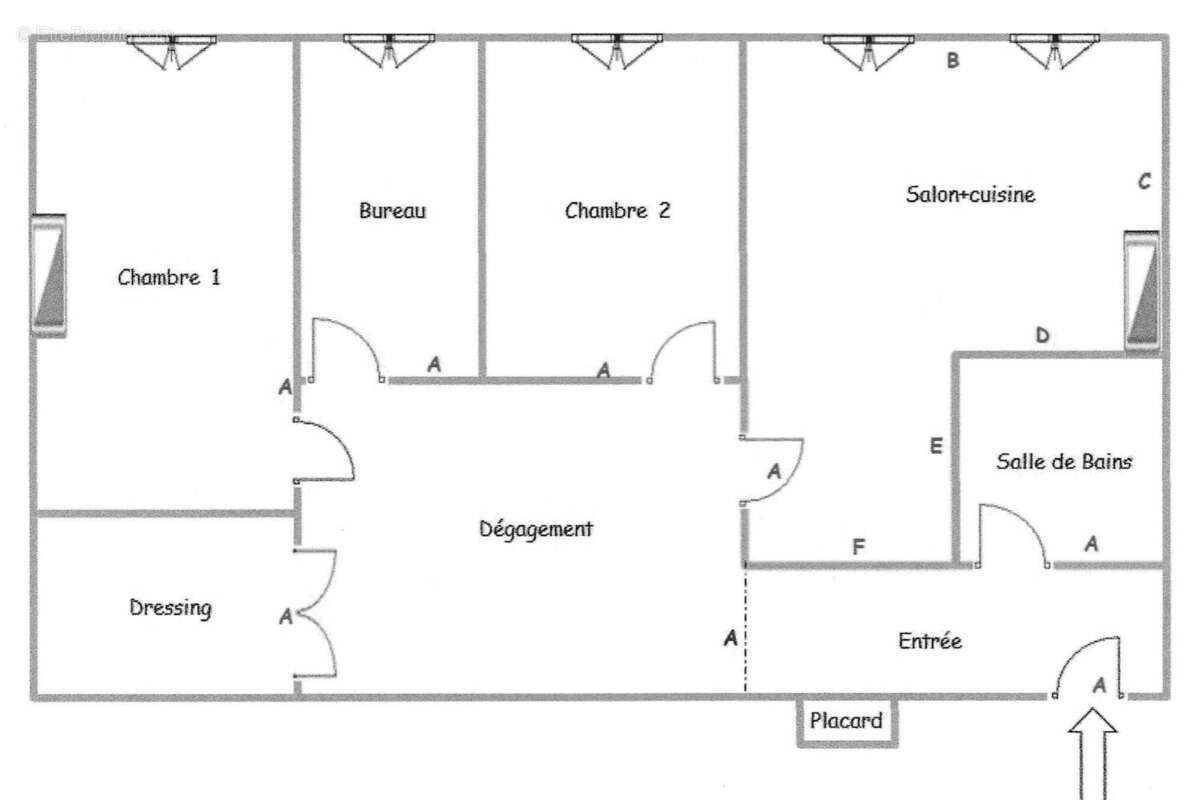
RARE. LYON 1. Haut des pentes, à 300 mètres du métro et de la place de la Croix-Rousse. Dans un immeuble de type Canuts, en étage élevé avec ascenseur, doté d'une très belle vue dégagée et sans vis à vis. Venez découvrir cet appartement de 67 m² carrez, lumineux, éclairé par 5 fenêtres, entièrement à rénover et à réaménager. Il se compose actuellement, d'une entrée avec placard, d'une salle de bains avec baignoire et wc, d'un dégagement, d'une cuisine fermée, d'une alcôve, d'une chambre, d'une chambre d'enfant et d'un bureau. Tout le cachet de l'ancien peut être retrouvé : parquet bois, plafond à la Française, belle hauteur sous plafond de 3,80 m. Les gros plus : deux caves, un grenier et au sein de la copropriété : un local à vélos et un jardin commun d'environ 50 m². 27 lots principaux. Quote part de charges annuelles 875 euros plus 400 euros de fond travaux. DPE Vierge, non applicable. Honoraires charge vendeur. Pas de procédure en cours. Les informations sur les risques auxquels ce bien est exposé sont disponibles sur le site Géorisques : www.georisques.gouv.fr. Agence ARLIM PRESTIGE Croix-Rousse / Caluire Sandrine OLIVIER [Coordonnées masquées] ou [Coordonnées masquées].Informations LOI ALUR : Soumis au régime de copropriété.Nombre de lots : 157. Quote part annuelle(moyenne) : 875 euros.Honoraires charge vendeur. (gedeon_40266_32234787)
Voir plus

Référence: AG823-19879
Bien en copropriété. Nombre de lots : 157. Charges de copropriété : 875 €.
Honoraires à la charge du vendeur.

Prêt immobilier

Vous souhaitez connaître votre capacité d’emprunt et trouver le meilleur crédit immobilier ?
Réaliser une simulation gratuite

Photo 1 - Appartement à LYON-1E
Photo 1
Photo 2 - Appartement à LYON-1E
Photo 2
Photo 3 - Appartement à LYON-1E
Photo 3
Photo 4 - Appartement à LYON-1E
Photo 4
Photo 5 - Appartement à LYON-1E
Photo 5
Ce site est protégé par reCAPTCHA la Politique de confidentialité et les Conditions d’utilisation de Google s’appliquent.
Obtenir un prêt immobilier au meilleur taux ?

En poursuivant votre navigation sans modifier vos paramètres, vous acceptez l'utilisation de cookies susceptibles de réaliser des statistiques de visite. Cliquez ici pour plus d'informations