Pas de commerce à La Roche-Maurice pour le moment. Découvrez dès maintenant les commerces dans le département Finistère.
Bénéficiez des services de nos partenaires locaux soigneusement sélectionnés
pour vous accompagner dans votre parcours d'achat immobilier

Appartement 156m² à nice

— Nice 06000 —
995 000 €
156 m²
5 pièces
parkingbalcon/terrasse

Nos partenaires locaux
NICE PARC IMPERIAL - Appartement-villa duplex 5 pièces de 156 m² – Parc Impérial – Terrasses, jardin, calme absolu

Dans le très recherché quartier du Parc Impérial, au fond d’une allée verdoyante et discrète, découvrez un bien rare : un appartement-villa en duplex de 156 m², baigné de lumière, avec 2 grandes terrasses plein sud et un jardin privatif.
Un véritable havre de paix avec vue imprenable sur la cathédrale russe, à seulement quelques minutes de la mer.

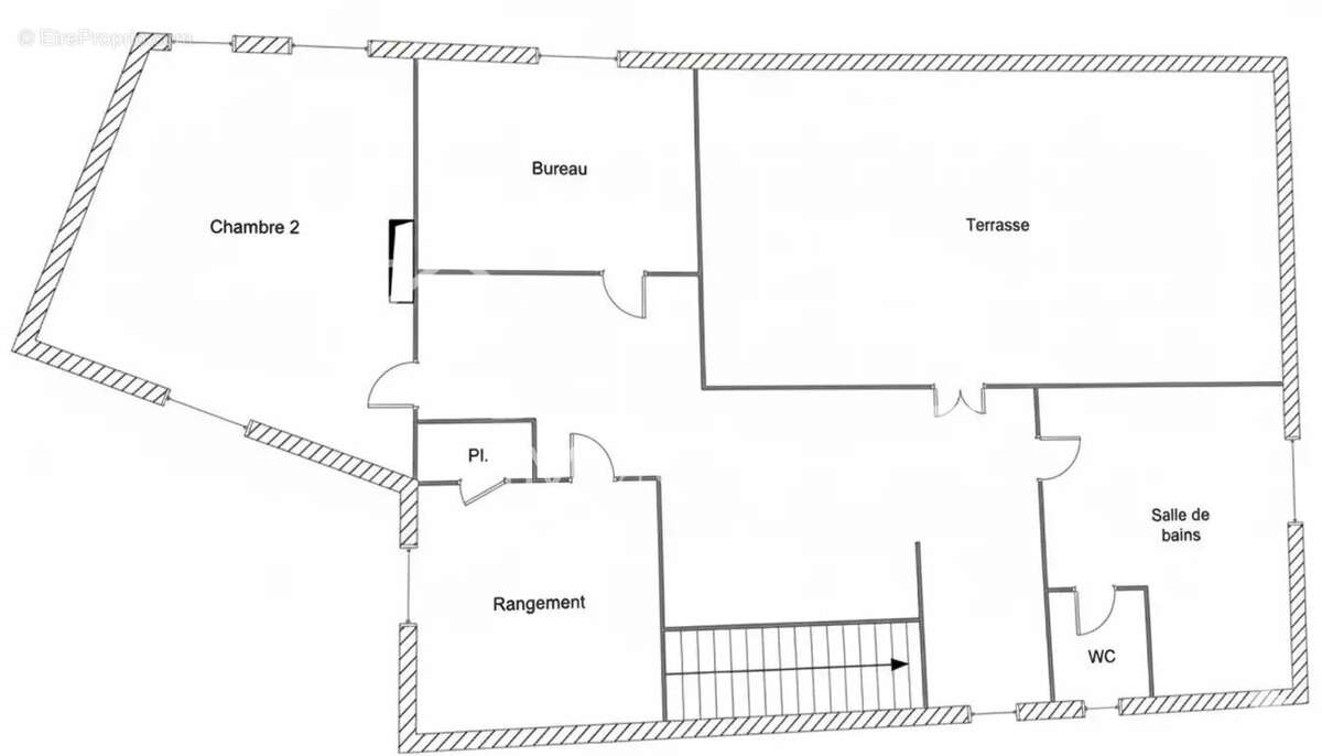
L’ensemble est actuellement configuré en, un appartement principal de 124 m² et un 2 pièces indépendant de 32 m² (actuellement loué 740 €/mois)

Possibilité simple de réunifier pour recréer un vaste logement de 156 m².

Niveau principal : Superbe séjour de 54 m² ouvert sur terrasse plein sud, Cuisine, WC, 2 pièces indépendant avec entrée séparée, Jardin privatif en contrebas

À l’étage : 2 chambres, Atelier / bureau, Salle de bains avec WC, Terrasse de 40 m² avec vue exceptionnelle

En rez-de-jardin : cave et jardin complètent ce bien plein de charme, dans une élégante maison de 1925.

Écoles, commerces, tramway et gare accessibles à pied.
Calme absolu, luminosité, charme et potentiel d’aménagement exceptionnel.

Un bien unique, inspirant et rare sur le marché. À visiter sans tarder !

Classe énergie: F
Voir plus

Barème des honoraires
DPE
A
B
C
D
E
F
G
GES
A
B
C
D
E
F
G

Prêt immobilier

Vous souhaitez connaître votre capacité d’emprunt et trouver le meilleur crédit immobilier ?
Réaliser une simulation gratuite

Appartement à NICE
Appartement à NICE
Appartement à NICE
Appartement à NICE
Appartement à NICE
Appartement à NICE
Appartement à NICE
Appartement à NICE
Appartement à NICE
Appartement à NICE
Appartement à NICE
Appartement à NICE
Appartement à NICE
Appartement à NICE
Appartement à NICE
Appartement à NICE
Ce site est protégé par reCAPTCHA la Politique de confidentialité et les Conditions d’utilisation de Google s’appliquent.
Obtenir un prêt immobilier au meilleur taux ?

En poursuivant votre navigation sans modifier vos paramètres, vous acceptez l'utilisation de cookies susceptibles de réaliser des statistiques de visite. Cliquez ici pour plus d'informations