Pas de parking à Cisse pour le moment. Découvrez dès maintenant les parkings dans le département Vienne.
Bénéficiez des services de nos partenaires locaux soigneusement sélectionnés
pour vous accompagner dans votre parcours d'achat immobilier

Appartement 65m² à montpellier

— Montpellier 34000 —
185 500 €
66 m²
3 pièces
parking

Nos partenaires locaux
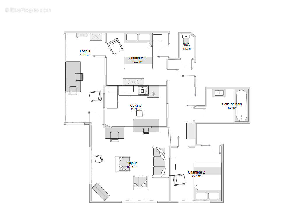
NOUVEAUTE , appartement niché au 5 ème et dernier étage avec ascenseur d'une résidence bien tenue, offrant un cadre de vie agréable.
Baigné de lumière grâce à ses nombreuses ouvertures, il bénéficie d'une vue entièrement dégagée, sans aucun vis-à-vis, et d'une atmosphère chaleureuse dès l'entrée.

L'appartement est en très bon état général et se distingue par son charme, sa luminosité et son ambiance accueillante. La climatisation, les nombreux rangements, ainsi que sa place de parking privative et sa cave complètent parfaitement le confort au quotidien. Il se compose d'une entrée, 2 chambres, un séjour /cuisine ouvrant sur une terrasse de 12 m²

Ce bien conviendra idéalement :

? aux personnes vivant ou travaillant à l'Ouest de Montpellier,
? à celles dont les activités professionnelles, sportives ou familiales se situent dans ce secteur,
? et plus largement à tous les amateurs de derniers étages, à la recherche d'un lieu de vie lumineux et sans vis-à-vis.
Voir plus

Référence: 4936
DPE
A
B
C
D
E
F
G
GES
A
B
C
D
E
F
G

Prêt immobilier

Vous souhaitez connaître votre capacité d’emprunt et trouver le meilleur crédit immobilier ?
Réaliser une simulation gratuite

Appartement à MONTPELLIER
Appartement à MONTPELLIER
Appartement à MONTPELLIER
Appartement à MONTPELLIER
Appartement à MONTPELLIER
Appartement à MONTPELLIER
Appartement à MONTPELLIER
Ce site est protégé par reCAPTCHA la Politique de confidentialité et les Conditions d’utilisation de Google s’appliquent.
Obtenir un prêt immobilier au meilleur taux ?

En poursuivant votre navigation sans modifier vos paramètres, vous acceptez l'utilisation de cookies susceptibles de réaliser des statistiques de visite. Cliquez ici pour plus d'informations