Bénéficiez des services de nos partenaires locaux soigneusement sélectionnés
pour vous accompagner dans votre parcours d'achat immobilier

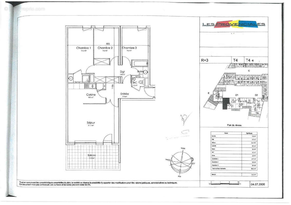
A vendre à avignon face remparts ( 84000 ) : appartement 4 pièces - terrasse - parking - residence recente

— Avignon 84000 —
280 500 €
80 m²
4 pièces
parkingbalcon/terrasseascenseur

Nos partenaires locaux
Idéalement situé Boulevard Limbert à Avignon, face aux remparts, découvrez cet appartement d'environ 80m², lumineux niché au 3 éme étage avec ascenseur d'une résidence récente et sécurisée. Il offre une belle pièce de vie avec cuisine semi-ouverte, prolongeant l'espace vers une agréable terrasse d'environ 14 m², parfaite pour profiter de la vue dégagée. Côté nuit, vous trouverez trois chambres, dont une avec sa salle d'eau privative, ainsi qu'une salle de bains supplémentaire et des toilettes indépendantes. Vous apprécierez son calme, sa luminosité, et le confort moderne de la résidence. En sous-sol, une place de parking privative pour 2 véhicules et une cave complètent ce bien rare. Possibilité de l'acquérir meublé pour plus de simplicité. Copropriété de 327 lots - dont 125 lots habitation. (Pas de procédure en cours). Charges annuelles : 20 euros. Rana SEMAAN (EI) Agent Commercial - Numéro RSAC : 888782885 - AVIGNON.
Voir plus

Référence: 6200
Bien en copropriété. Nombre de lots : 327. Charges de copropriété : 20 €.
Honoraires à la charge du vendeur.
Barème des honoraires
DPE
A
B
C
D
E
F
G
GES
A
B
C
D
E
F
G

Prêt immobilier

Vous souhaitez connaître votre capacité d’emprunt et trouver le meilleur crédit immobilier ?
Réaliser une simulation gratuite

Appartement à AVIGNON
Appartement à AVIGNON
Appartement à AVIGNON
Appartement à AVIGNON
Appartement à AVIGNON
Appartement à AVIGNON
Appartement à AVIGNON
Appartement à AVIGNON
Appartement à AVIGNON
Appartement à AVIGNON
Appartement à AVIGNON
Appartement à AVIGNON
Ce site est protégé par reCAPTCHA la Politique de confidentialité et les Conditions d’utilisation de Google s’appliquent.
Obtenir un prêt immobilier au meilleur taux ?

En poursuivant votre navigation sans modifier vos paramètres, vous acceptez l'utilisation de cookies susceptibles de réaliser des statistiques de visite. Cliquez ici pour plus d'informations