Bénéficiez des services de nos partenaires locaux soigneusement sélectionnés
pour vous accompagner dans votre parcours d'achat immobilier

Dernier etage grande terrasse

— Toulouse 31400 —
699 900 €
109 m²
5 pièces
parkingbalcon/terrasseascenseur

Nos partenaires locaux
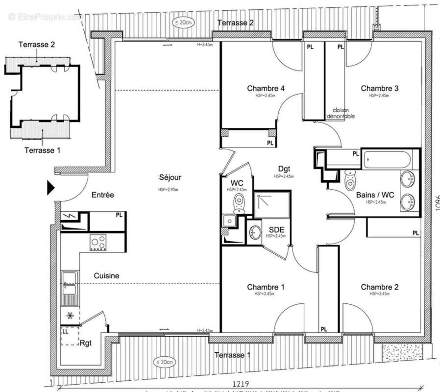
Toulouse St Michel, En 4ème et dernier étage d'une copropriété intimiste on vous propose ce bel appartement traversant bénéficiant d'une double terrasse. Composé d'une entrée avec placard sur séjour cuisine de 43,68m2 exposé nord / sud avec double terrasse de 32,42 et 20,63m2. Le coin nuit comprend 3 chambres avec placard de 11,04, 12,80 et 9,68m2, un wc indépendant, une salle de bain-wc et une suite parentale de 13,88m2 salle d'eau incluse. 2 places de parking en sous-sol. Prestations soignées: isolation renforcée, chaudière gaz condensation, peinture lisse, alarme, volets roulants électriques, possibilité de domotique, parquet contrecollé bois au sol, carrelage dans les pièces d'eau ...... A proximité immédiate des bords de Garonne, en face de l'Île du Ramier, l'appartement se trouve également proche du coeur de quartier de Saint-Michel avec ses commerces et services du quotidien, ses écoles et sa station de la ligne B du métro, point d'entrée du centre-ville de Toulouse. BIEN NON SOUMIS AU DPE Pour tout renseignement : Féänor MAMEO [Coordonnées masquées]
Voir plus

Référence: CPA-19
Honoraires à la charge du vendeur.

Prêt immobilier

Vous souhaitez connaître votre capacité d’emprunt et trouver le meilleur crédit immobilier ?
Réaliser une simulation gratuite

Appartement à TOULOUSE
Appartement à TOULOUSE
Appartement à TOULOUSE
Appartement à TOULOUSE
Appartement à TOULOUSE
Appartement à TOULOUSE
Appartement à TOULOUSE
Appartement à TOULOUSE
Appartement à TOULOUSE
Appartement à TOULOUSE
Appartement à TOULOUSE
Appartement à TOULOUSE
Appartement à TOULOUSE
Appartement à TOULOUSE
Appartement à TOULOUSE
Appartement à TOULOUSE
Appartement à TOULOUSE
Appartement à TOULOUSE
Ce site est protégé par reCAPTCHA la Politique de confidentialité et les Conditions d’utilisation de Google s’appliquent.
Obtenir un prêt immobilier au meilleur taux ?

En poursuivant votre navigation sans modifier vos paramètres, vous acceptez l'utilisation de cookies susceptibles de réaliser des statistiques de visite. Cliquez ici pour plus d'informations