Pas de parking à La Garnache pour le moment. Découvrez dès maintenant les parkings dans le département Vendée.
Bénéficiez des services de nos partenaires locaux soigneusement sélectionnés
pour vous accompagner dans votre parcours d'achat immobilier

Grande terrasse

— Quint-Fonsegrives 31130 —
267 700 €
62 m²
3 pièces
parkingbalcon/terrasseascenseur

Nos partenaires locaux
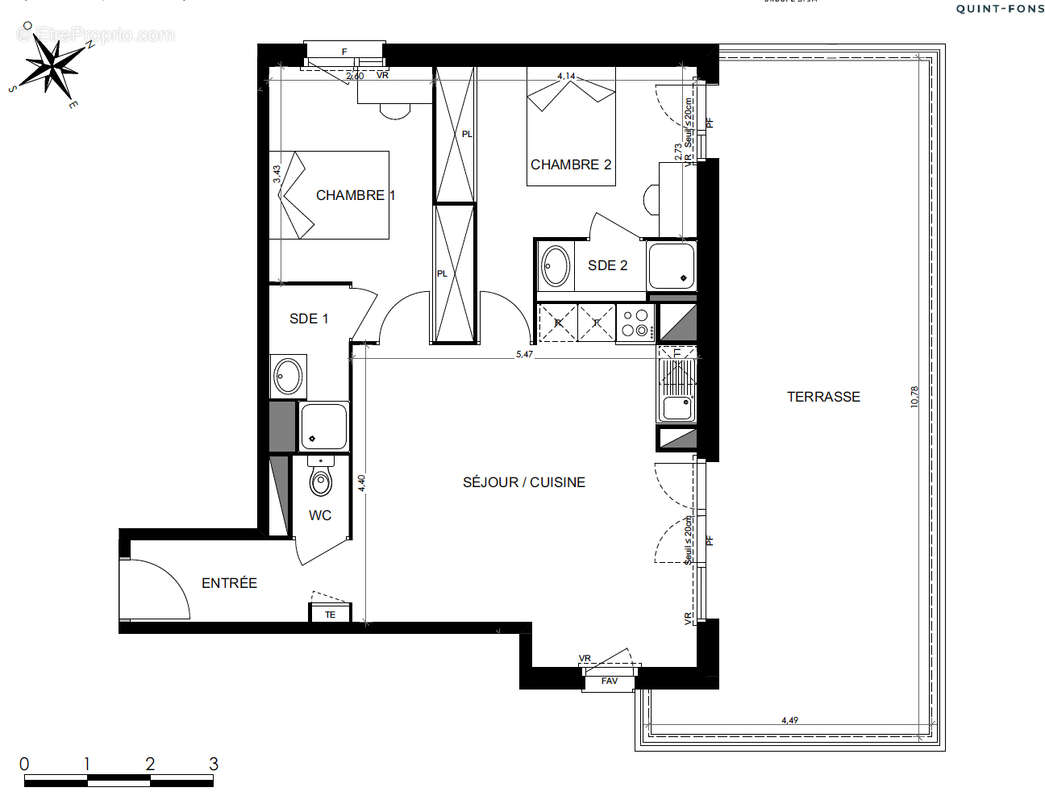
Quint Fonsegrives GRANDE TERRASSE DE 37,30m2 En 4ème et dernier étage cet appartement 3 pièces idéalement agencé vous propose une entrée, un wc indépendant, un séjour cuisine de 26,90m2 exposé est sur terrasse de 37,30m2 et 2 chambres avec salle d'eau privative pour 14,48 et 14,69m2. Prestations soignées: PAC collective avec comptage individuel, carrelage 45*45 au sol, parquet dans les chambres, peinture lisse, volets roulants électriques dans le séjour ...... Quartier Ribaute, proche de la clinique Croix du Sud, l'appartement bénéficie d'un emplacement privilégié avec des capacités de mobilité diverses (rocade, bus, futures lignes de métro C) et un accès au coeur de ville rapide. Équipée de plusieurs espaces communs comme une salle d'étude, une salle de sport ou encore une laverie, la résidence garantit un quotidien serein à ses occupants, jeunes actifs et étudiants, qui jouissent de toutes les commodités du quotidien sur place ! Au-delà de leur praticité, ces espaces sont également des lieux d'échange et de rencontre permettant d'évoluer en harmonie les uns avec les autres. La copropriété dispose d'un coeur d''îlot paysager avec de vastes espaces verts, répartis en différents points de la résidence et déclinés selon différents thèmes, l'environnement paysager direct garantit calme et plénitude aux résidents. Kiosque, plantes aromatiques, jardins paysagers, piétonnier aménagé. Chacun pourra y trouver son coin préféré pour s'y ressourcer. BIEN NON SOUMIS AU DPE Pour tout renseignement : Féänor MAMEO [Coordonnées masquées]
Voir plus

Référence: VEQ-E407

Prêt immobilier

Vous souhaitez connaître votre capacité d’emprunt et trouver le meilleur crédit immobilier ?
Réaliser une simulation gratuite

Appartement à QUINT-FONSEGRIVES
Appartement à QUINT-FONSEGRIVES
Appartement à QUINT-FONSEGRIVES
Appartement à QUINT-FONSEGRIVES
Appartement à QUINT-FONSEGRIVES
Ce site est protégé par reCAPTCHA la Politique de confidentialité et les Conditions d’utilisation de Google s’appliquent.
Obtenir un prêt immobilier au meilleur taux ?

En poursuivant votre navigation sans modifier vos paramètres, vous acceptez l'utilisation de cookies susceptibles de réaliser des statistiques de visite. Cliquez ici pour plus d'informations