Bénéficiez des services de nos partenaires locaux soigneusement sélectionnés
pour vous accompagner dans votre parcours d'achat immobilier

Appartement 63m² à thiverval-grignon

— Thiverval-Grignon 78850 —
251 000 €
63 m²
3 pièces
balcon/terrasse

Nos partenaires locaux
Iad France - Pascal Crosnier vous propose : Je vous présente un appartement duplex de type F3, d'une surface de 63 m² environ, situé au cOEur du paisible Parc de Folleville, à Thiverval-Grignon.
Idéalement situé à l'ouest de Paris, l'accès est facile par les autoroutes A13 et A12. Il se trouve à 11 km de Plaisir et offre une proximité immédiate avec les commodités : commerces, centres commerciaux (Brigitte à 6 min, Grand Plaisir à 10 min), le centre hospitalier de Plaisir (8 min), établissements scolaires, crèche, et l'arrêt de bus Calvaire (ligne 5312). L'environnement est calme, de qualité, et sans aucun vis-à-vis.
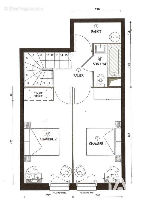
Cet appartement se situe au premier étage d'une résidence moderne et fibrée de 2016. L'appartement a été entièrement repeint pour la mise en vente. Au premier niveau : Une entrée donne sur un spacieux séjour d'environ 26 m² avec balcon, bénéficiant d'une excellente exposition Est-Ouest. La cuisine est aménagée, équipée et ouverte sur le séjour, offrant un espace de vie convivial. Un WC indépendant complète ce niveau. À l'étage : Un palier dessert deux chambres d'environ 12 m² chacune (dont une avec penderie), une salle de bain avec WC, et un espace de rangement pratique.
Le chauffage est assuré par des panneaux rayonnants électriques et la production d'eau chaude par un ballon thermodynamique de 200 litres. Un emplacement de parking privatif extérieur est inclus. La résidence est en excellent état général (garantie décennale récemment expirée), et aucun travaux n'est à prévoir au sein de la copropriété.
Ce bien est ouvert à l'inter-cabinet pour tous les professionnels de l'immobilier. N'hésitez pas à me contacter rapidement pour obtenir plus de détails ou pour organiser une visite.


La presente annonce immobiliere vise 2 lots situés dans une copropriété de 54 lots au total et ne faisant l'objet d'aucune procédure en cours citée à l'article L. 721-1 du code de la construction et de l'habitation. Montant moyen mensuel de charges déclaré par le vendeur : 79.67¤ par mois (soit 956 ¤ annuel). Honoraires d'agence à la charge du vendeur.
Information d'affichage énergétique sur ce bien : classe ENERGIE A indice 61 et classe CLIMAT A indice 1. Les informations sur les risques auxquels ce bien est exposé, y compris l'obligation légale de débroussaillement, sont disponibles sur le site Géorisques : http://www.georisques.gouv.fr.
La présente annonce immobilière a été rédigée sous la responsabilité éditoriale de M Pascal Crosnier mandataire indépendant en immobilier (sans détention de fonds), agent commercial de la SAS I@D France immatriculé au RSAC de MEAUX sous le numéro 892318254, titulaire de la carte de démarchage immobilier pour le compte de la société I@D France SAS.
Informations LOI ALUR :
Soumis au régime de copropriété.
Nombre de lots : 54.
Quote part annuelle(moyenne) : 956 euros.
Honoraires charge vendeur. (gedeon_6727_32247751)
Voir plus

Référence: 1899195
Bien en copropriété. Nombre de lots : 54. Charges de copropriété : 956 €.
Honoraires à la charge du vendeur.
DPE
A
B
C
D
E
F
G
GES
A
B
C
D
E
F
G

Prêt immobilier

Vous souhaitez connaître votre capacité d’emprunt et trouver le meilleur crédit immobilier ?
Réaliser une simulation gratuite

Photo 1 - Appartement à THIVERVAL-GRIGNON
Photo 1
Photo 2 - Appartement à THIVERVAL-GRIGNON
Photo 2
Photo 3 - Appartement à THIVERVAL-GRIGNON
Photo 3
Photo 4 - Appartement à THIVERVAL-GRIGNON
Photo 4
Photo 5 - Appartement à THIVERVAL-GRIGNON
Photo 5
Photo 6 - Appartement à THIVERVAL-GRIGNON
Photo 6
Photo 7 - Appartement à THIVERVAL-GRIGNON
Photo 7
Photo 8 - Appartement à THIVERVAL-GRIGNON
Photo 8
Photo 9 - Appartement à THIVERVAL-GRIGNON
Photo 9
Ce site est protégé par reCAPTCHA la Politique de confidentialité et les Conditions d’utilisation de Google s’appliquent.
Obtenir un prêt immobilier au meilleur taux ?

En poursuivant votre navigation sans modifier vos paramètres, vous acceptez l'utilisation de cookies susceptibles de réaliser des statistiques de visite. Cliquez ici pour plus d'informations